新都心,次新房,全明套三双卫,不临街,采光好,近地铁,有钥匙
-
255万
总价
-
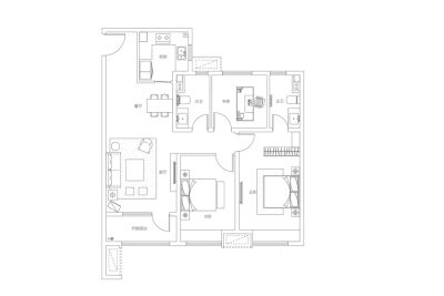
3室2厅2卫
户型
-
113.78㎡
建筑面积
买房加房产交流群,省钱不踩雷
3000+人正在热聊
加入群聊
-
单价
22412元/平米
- 挂牌价格解析
-
楼层
低层/28层
- 咨询楼层
-
套内
暂无数据
- 咨询套内使用面积
-
楼型
板楼
-
朝向
南北
-
装修
精装修
-
年代
2022
-
发布
2025-04-13
-
地铁
距3号线长沙路站约799米
-
咨询总首付
首付约99.6万
首付税费及佣金情况 -
深度测评
小区青特星城(市北-河西)
-
更多
楼户比、楼层高度、交易历史、抵押信息
房源描述(1)
周边配套
地址:黑龙江南路286号
本月均价 22412元/m²
环比上月 持平
同比去年 下跌 7.34%
买房加房产交流群,省钱不踩雷
3000+人正在热聊
加入群聊
- 免费咨询
- 专业服务
- 区域解读
- 户型分析
免责声明:房源信息由网站用户提供,其真实性、合法性由信息提供者负责,最终以政府部门登记备案为准。本网站不声明或保证内容之正确性和可靠性,购买该房屋时,请谨慎核查。入学情况仅凭历史经验总结,在此不承诺升学事宜。请您在签订合同之前,切勿支付任何形式的费用,以免上当受骗。

