此房自今年刚刚重新装修,保养得当,单位小区 公摊少
-
54.5万
总价
-
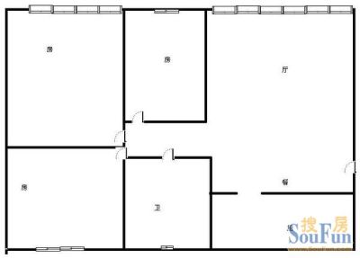
3室2厅
户型
-
90.99㎡
建筑面积
买房加房产交流群,省钱不踩雷
3000+人正在热聊
加入群聊
-
单价
5990元/平米
- 挂牌价格解析
-
楼层
中楼层/8层
- 咨询楼层
-
套内
暂无数据
- 咨询套内使用面积
-
朝向
南
-
装修
简装
-
供暖
暂无数据
-
发布
2025-01-08
-
地铁
距1号线白苍岭站约1153米
-
深度测评
小区北大路建安公司宿舍(西乡塘-友爱北湖片区)
-
更多
楼户比、楼层高度、交易历史、抵押信息
周边配套
地址:北大北路15号
交通综合评分
查看全部5.2
“一般”
超过南宁96.4%的小区
-
地铁公交
10.0
-
城际交通
4.0
本月均价 8967元/m²
环比上月 持平
同比去年 上涨 40.27%
猜你喜欢
同小区其它房源
-
7988元/㎡
本月挂牌均价
-
0.48%
环比上月
买房加房产交流群,省钱不踩雷
3000+人正在热聊
加入群聊
免责声明:房源信息由网站用户提供,其真实性、合法性由信息提供者负责,最终以政府部门登记备案为准。本网站不声明或保证内容之正确性和可靠性,购买该房屋时,请谨慎核查。入学情况仅凭历史经验总结,在此不承诺升学事宜。请您在签订合同之前,切勿支付任何形式的费用,以免上当受骗。



