保利山渐青联排边套大别墅送200平大院子 业主诚意急售
-
388万
总价
-
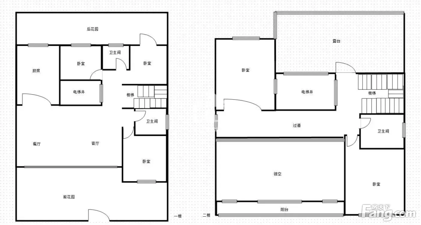
5室2厅3卫
户型
-
165㎡
建筑面积
买房加房产交流群,省钱不踩雷
3000+人正在热聊
加入群聊
-
单价
23515元/平米
- 挂牌价格解析
-
楼层
1层
- 咨询楼层
-
套内
160㎡
- 咨询套内使用面积
-
楼型
独栋
-
朝向
北
-
装修
毛坯
-
年代
2022
-
发布
2026-01-21
-
深度测评
小区山渐青别墅(兴宁-兴宁周边)
-
更多
楼户比、楼层高度、交易历史、抵押信息
房源描述(1)
周边配套
地址:兴宁邕武路20号(邕武路上3公里处
交通综合评分
查看全部6.6
“较好”
超过南宁96.8%的小区
-
地铁公交
9.0
-
驾车出行
10.0
-
7198元/㎡
本月挂牌均价
-
0.9%
环比上月
买房加房产交流群,省钱不踩雷
3000+人正在热聊
加入群聊
- 免费咨询
- 专业服务
- 区域解读
- 户型分析
免责声明:房源信息由网站用户提供,其真实性、合法性由信息提供者负责,最终以政府部门登记备案为准。本网站不声明或保证内容之正确性和可靠性,购买该房屋时,请谨慎核查。入学情况仅凭历史经验总结,在此不承诺升学事宜。请您在签订合同之前,切勿支付任何形式的费用,以免上当受骗。

