租金高南宁云星城,新房1房读天桃中学,民族广场地铁站
-
50万
总价
-
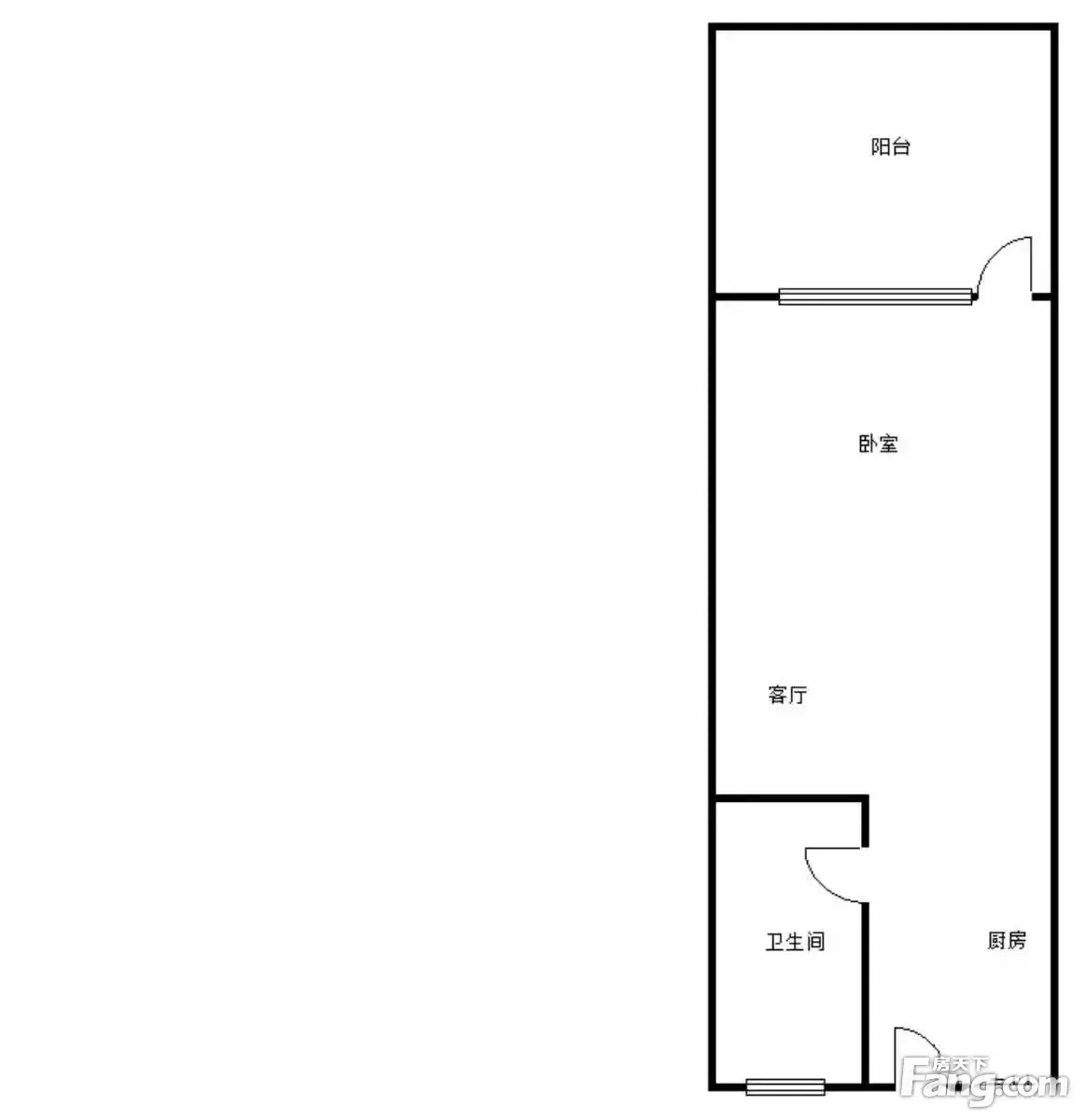
1室1卫
户型
-
31㎡
建筑面积
买房加房产交流群,省钱不踩雷
3000+人正在热聊
加入群聊
-
单价
16129元/平米
- 挂牌价格解析
-
楼层
高层/28层
- 咨询楼层
-
套内
暂无数据
- 咨询套内使用面积
-
楼型
板楼
-
朝向
东
-
装修
精装修
-
年代
2016
-
发布
2026-01-04
-
地铁
距1号线民族广场站约121米
-
深度测评
小区云星城(青秀-七星桃源区)
-
更多
楼户比、楼层高度、交易历史、抵押信息
房源描述(1)
周边配套
地址:古城路6-11号
交通综合评分
查看全部5.2
“一般”
超过南宁0.0%的小区
-
地铁公交
10.0
-
城际交通
4.0
本月均价 20615元/m²
环比上月 持平
同比去年 持平 持平
猜你喜欢
同小区其它房源
-
12685元/㎡
本月挂牌均价
-
0.11%
环比上月
买房加房产交流群,省钱不踩雷
3000+人正在热聊
加入群聊
- 免费咨询
- 专业服务
- 区域解读
- 户型分析
免责声明:房源信息由网站用户提供,其真实性、合法性由信息提供者负责,最终以政府部门登记备案为准。本网站不声明或保证内容之正确性和可靠性,购买该房屋时,请谨慎核查。入学情况仅凭历史经验总结,在此不承诺升学事宜。请您在签订合同之前,切勿支付任何形式的费用,以免上当受骗。


