荣和山水绿城一期 3房1厅85万
-
85万
总价
-
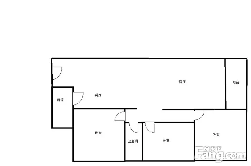
3室1厅1卫
户型
-
88㎡
建筑面积
买房加房产交流群,省钱不踩雷
3000+人正在热聊
-
单价
9659元/平米
- 挂牌价格解析
-
楼层
中层/33层
- 咨询楼层
-
套内
87㎡
- 咨询套内使用面积
-
楼型
板楼
-
朝向
南
-
装修
中装修
-
年代
2012
-
发布
2025-12-28
-
地铁
距5号线狮山公园约813米
-
深度测评
小区荣和山水绿城(兴宁-明秀东)
-
更多
楼户比、楼层高度、交易历史、抵押信息
房源描述(1)
-
核心卖点问经纪人
房屋情况介绍: 1:业主卖房,看房方便 2:方便的购物场所是您生活的保障 3:的价格为您辛苦的积蓄作个便捷的理财 4:方便健康的饮食环境是您生活的保障 提醒: 可能此房信息不够详细,如有任何问题请与我联系,我会根据您的需求,当前市场价位,房产市场走势,给您推荐合适房子 顺祝您身体健康、工作顺利
-
业主心态问经纪人
业主很信任我,我能了解业主卖房新的动态。目前市场交易量平稳,政策已经基本稳定,是市场触底入手的好时候。请不要错过性价比高的好房。
-
小区配套问经纪人
。
-
服务介绍问经纪人
本人做房产多年,本着专业的房产知识,为您服务,我会在短的时间内帮您买好满意的房子,不让您错失任何好房子,更不让您每天为买房的事烦心,欢迎随时联系!
周边配套
交通综合评分
查看全部超过南宁34.8%的小区
-
地铁公交
10.0
-
驾车出行
10.0
-
城际交通
4.0
本月均价 8803元/m²
环比上月 上涨 1.3%
同比去年 下跌 4.43%
猜你喜欢
同小区其它房源
户型齐全,主打明卫,明厨,独立衣帽间,客厅朝南,全明格局,双卧朝南,主卧朝南三居
荣和山水绿城户型主要有74平-126平的明卫,明厨,独立衣帽间,客厅朝南,全明格局,双卧朝南,主卧朝南的三居 、57平-114平的独立衣帽间,明卫,明厨,客厅朝南,全明格局,主卧朝南的二居 、88平-196平的明卫,明厨,客厅朝南,全明格局,双卧朝南,主卧朝南的四居 。
*获取完整户型报告,同时会有免费语音讲解服务
-
7096元/㎡
本月挂牌均价
-
0.92%
环比上月
买房加房产交流群,省钱不踩雷
3000+人正在热聊
- 免费咨询
- 专业服务
- 区域解读
- 户型分析

