区党委印刷厂宿舍(教育路)近学校
-
135万
总价
-
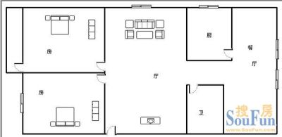
2室1厅1卫
户型
-
61㎡
建筑面积
买房加房产交流群,省钱不踩雷
3000+人正在热聊
-
单价
22131元/平米
- 挂牌价格解析
-
楼层
高层/6层
- 咨询楼层
-
套内
60㎡
- 咨询套内使用面积
-
楼型
板楼
-
朝向
南北
-
装修
简装修
-
年代
1986
-
发布
2025-09-19
-
地铁
距1号线民族广场站约883米
-
深度测评
小区区委印刷厂宿舍(青秀-七星桃源区)
-
更多
楼户比、楼层高度、交易历史、抵押信息
房源描述(1)
-
核心卖点问经纪人
房屋情况介绍: 1:业主卖房,看房方便 2:方便的购物场所是您生活的保障 3:的价格为您辛苦的积蓄作个便捷的理财 4:方便健康的饮食环境是您生活的保障 提醒: 可能此房信息不够详细,如有任何问题请与我联系,我会根据您的需求,当前市场价位,房产市场走势,给您推荐合适房子 顺祝您身体健康、工作顺利
-
业主心态问经纪人
业主很信任我,我能了解业主卖房新的动态。目前市场交易量平稳,政策已经基本稳定,是市场触底入手的好时候。请不要错过性价比高的好房。
-
小区配套问经纪人
。
-
服务介绍问经纪人
本人做房产多年,本着专业的房产知识,为您服务,我会在短的时间内帮您买好满意的房子,不让您错失任何好房子,更不让您每天为买房的事烦心,欢迎随时联系!
周边配套
交通综合评分
查看全部超过南宁36.6%的小区
-
地铁公交
10.0
-
城际交通
4.0
本月均价 20218元/m²
环比上月 下跌 0.54%
同比去年 下跌 2.78%
猜你喜欢
同小区其它房源
-
12685元/㎡
本月挂牌均价
-
0.11%
环比上月
买房加房产交流群,省钱不踩雷
3000+人正在热聊
- 免费咨询
- 专业服务
- 区域解读
- 户型分析

