保利和墅,位置好,边户花园大,土建完事
-
500万
总价
-
6室2厅
户型
-
280㎡
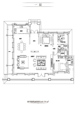
建筑面积
买房加房产交流群,省钱不踩雷
3000+人正在热聊
加入群聊
-
单价
17858元/平米
- 挂牌价格解析
-
楼层
3层
- 咨询楼层
-
套内
暂无数据
- 咨询套内使用面积
-
朝向
南北
-
装修
其他
-
供暖
暂无数据
-
发布
2024-05-28
-
深度测评
小区保利水韵长滩五期和墅(松北-融创茂)
-
更多
楼户比、楼层高度、交易历史、抵押信息
周边配套
地址:龙川路与江都街交汇处
交通综合评分
查看全部8.2
“较好”
超过哈尔滨95.1%的小区
-
地铁公交
10.0
-
驾车出行
10.0
-
城际交通
4.0
猜你喜欢
同小区其它房源
户型齐全,主打南北通透,挑高客厅,主卧套间其他居
保利水韵长滩五期和墅户型主要有380平-439平的南北通透,挑高客厅,主卧套间的其他居 、227平-400平的南北通透,挑高客厅,主卧套间的三居 、354平-391平的挑高客厅,主卧套间的五居 。
*获取完整户型报告,同时会有免费语音讲解服务
-
8611元/㎡
本月挂牌均价
-
0.69%
环比上月
买房加房产交流群,省钱不踩雷
3000+人正在热聊
加入群聊
免责声明:房源信息由网站用户提供,其真实性、合法性由信息提供者负责,最终以政府部门登记备案为准。本网站不声明或保证内容之正确性和可靠性,购买该房屋时,请谨慎核查。入学情况仅凭历史经验总结,在此不承诺升学事宜。请您在签订合同之前,切勿支付任何形式的费用,以免上当受骗。



