两室朝南 中间楼层采光好 位置佳 业主诚心
-
152万
总价
-
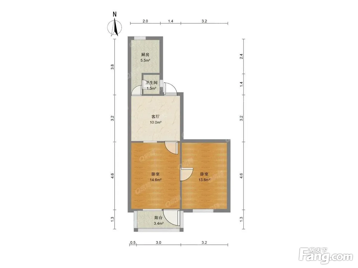
2室1厅
户型
-
66.44㎡
建筑面积
买房加房产交流群,省钱不踩雷
3000+人正在热聊
-
单价
22878元/平米
- 挂牌价格解析
-
楼层
中楼层/7层
- 咨询楼层
-
套内
暂无数据
- 咨询套内使用面积
-
楼型
板塔结合
-
朝向
南北
-
装修
其他
-
供暖
暂无数据
-
发布
2025-08-13
-
地铁
距2号线三孝口站约261米
-
咨询总首付
首付约38.1万
首付税费及佣金情况 -
深度测评
小区光明新村(庐阳-三孝口)
-
更多
楼户比、楼层高度、交易历史、抵押信息
房源描述(1)
-
核心卖点问经纪人
相信为您推荐的这套房子您一定会满意,赶快行动吧,先到先得! 房屋年代∶1980年,房屋面积∶66.44平方米,朝向∶南北通透 1. 小区配备良好物业管理,让你享受宾至如归的服务; 2. 小区人文素质高,是您的居家的品质选择; 3. 小区环境安静舒适,让您拥有高品质的生活环境; 4. 小区绿化高,绿树成荫鸟语花香让您随时呼吸到新鲜空气。
周边配套
交通综合评分
查看全部超过合肥75.2%的小区
-
地铁公交
10.0
-
城际交通
4.0
本月均价 27271元/m²
环比上月 下跌 0.46%
同比去年 下跌 7.51%
猜你喜欢
同小区其它房源
户型齐全,主打户型方正,明卫,明厨,主卧朝南二居
光明新村户型主要有46平-75平的户型方正,明卫,明厨,主卧朝南的二居 、34平-50平的户型方正,明厨的一居 、90平-104平的户型方正,明厨,明卫,客厅朝南的三居 。
*获取完整户型报告,同时会有免费语音讲解服务
-
30840元/㎡
本月挂牌均价
-
1.56%
环比上月
买房加房产交流群,省钱不踩雷
3000+人正在热聊
- 免费咨询
- 专业服务
- 区域解读
- 户型分析


