东园新村 南北对流双阳台三房 格局方正实用 省铁一
-
450万
总价
-
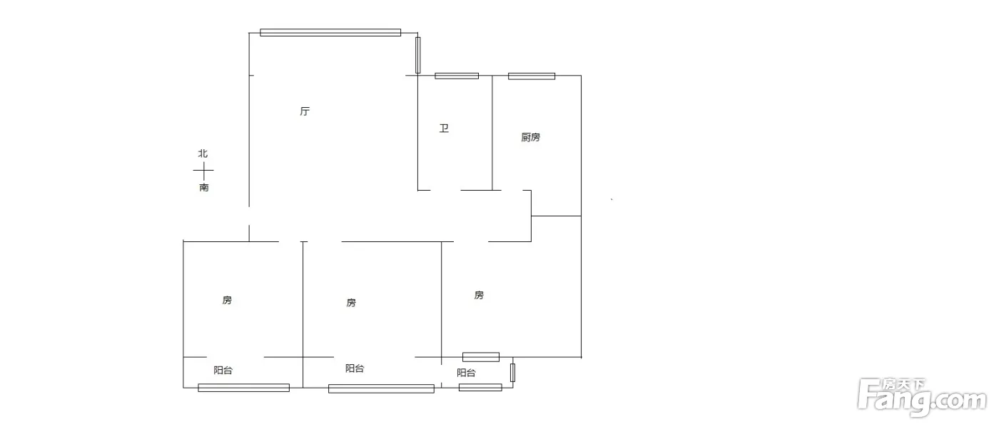
3室1厅
户型
-
92.37㎡
建筑面积
买房加房产交流群,省钱不踩雷
3000+人正在热聊
-
单价
48718元/平米
- 挂牌价格解析
-
楼层
高楼层/6层
- 咨询楼层
-
套内
92.37㎡
- 咨询套内使用面积
-
楼型
板楼
-
朝向
南
-
装修
简装
-
供暖
暂无数据
-
发布
2023-04-17
-
地铁
距1号线东山口站约412米
-
咨询总首付
首付约96.8万
首付税费及佣金情况 -
深度测评
小区越秀东园新村(越秀-东山)
-
更多
楼户比、楼层高度、交易历史、抵押信息
房源描述(1)
-
核心卖点问经纪人
相信为您的这套房子您一定会满意,赶快行动吧,先到先得! 房屋年代∶2015,面积∶92.37平方米,朝向∶南北 1. 小区配备高端物业管理,让你享受宾至如归的服务; 2. 小区人文素质高,是您的居家的绝佳选择; 3. 小区居住安静舒适,让您拥有高品质的生活环境; 4. 小区绿化率高,绿树成荫鸟语花香让您随时呼吸到新鲜空气。
周边配套
交通综合评分
查看全部超过广州8.2%的小区
-
地铁公交
10.0
-
驾车出行
7.0
-
城际交通
4.0
本月均价 56093元/m²
环比上月 下跌 3.88%
同比去年 下跌 9.4%
猜你喜欢
同小区其它房源
户型齐全,主打户型方正,明厨,明卫,客厅朝南,全明格局二居
越秀东园新村户型主要有48平-70平的户型方正,明厨,明卫,客厅朝南,全明格局的二居 、70平-94平的户型方正,明卫,明厨的三居 。
*获取完整户型报告,同时会有免费语音讲解服务
-
62365元/㎡
本月挂牌均价
-
0.79%
环比上月
买房加房产交流群,省钱不踩雷
3000+人正在热聊
- 免费咨询
- 专业服务
- 区域解读
- 户型分析


