居家花园小区 西派天河序 精装修 业主急卖此房 随时可看
-
666万
总价
-
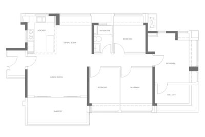
4室2厅3卫
户型
-
140.68㎡
建筑面积
买房加房产交流群,省钱不踩雷
3000+人正在热聊
-
单价
47341元/平米
- 挂牌价格解析
-
楼层
低层/32层
- 咨询楼层
-
套内
暂无数据
- 咨询套内使用面积
-
楼型
板楼
-
朝向
南北
-
装修
精装修
-
年代
2021
-
发布
2025-11-28
-
地铁
距3号线北延段梅花园站约285米
-
咨询总首付
首付约150.3万
首付税费及佣金情况 -
深度测评
小区西派天河序(天河-天河北)
-
更多
楼户比、楼层高度、交易历史、抵押信息
房源描述(1)
-
核心卖点问经纪人
小区概况:小区居住环境好,社区比较完善,是大片的居民区,周边生活交通都比较便利 理由: 1、本小区交通便利 2、本小区周边配套设施一应俱全,是人文居住的理想场所.
-
业主心态问经纪人
房子是开发商统一精装修的 啊业主诚心出售,欢迎看房,随时恭候您的到来。
-
小区配套问经纪人
位置:小区地理位置佳,绿化率高,居民素质高 配套:有健身器材,小型篮球场,可供小区居民使用 车位:停车位充足,建有地上停车场和地下车库 保安:小区内24保安巡逻
-
服务介绍问经纪人
本人从事房多年,公司有大量好房源,欢迎进入我的店铺查看,欢迎随时电话咨询,相信我的专业,为您置业安家保驾护航。
-
税费分析房贷计算
新房: 房税费首套房契税1至3个点。 物业费2元到3元一平方。 购买新房主要税费: 契税:90平以内:1% ;90-4 平收1.5%;4平以上收2%(交房后地税收取) 注:以上收费仅供参考
-
户型解读问经纪人
房屋拥有相对宽松的尺寸,布局通透,动静分离
周边配套
本月均价 59306元/m²
环比上月 下跌 0.71%
同比去年 下跌 6.02%
户型齐全,主打南北通透,全明格局,户型方正,采光充足四居
西派天河序户型主要有125平-190平的南北通透,全明格局,户型方正,采光充足的四居 。
*获取完整户型报告,同时会有免费语音讲解服务
-
55397元/㎡
本月挂牌均价
-
1.05%
环比上月
买房加房产交流群,省钱不踩雷
3000+人正在热聊
- 免费咨询
- 专业服务
- 区域解读
- 户型分析

