下调白万D铁,云亩独栋别墅,沿湖带私家码头,家门口独钓寒江雪
-
880万
总价
-
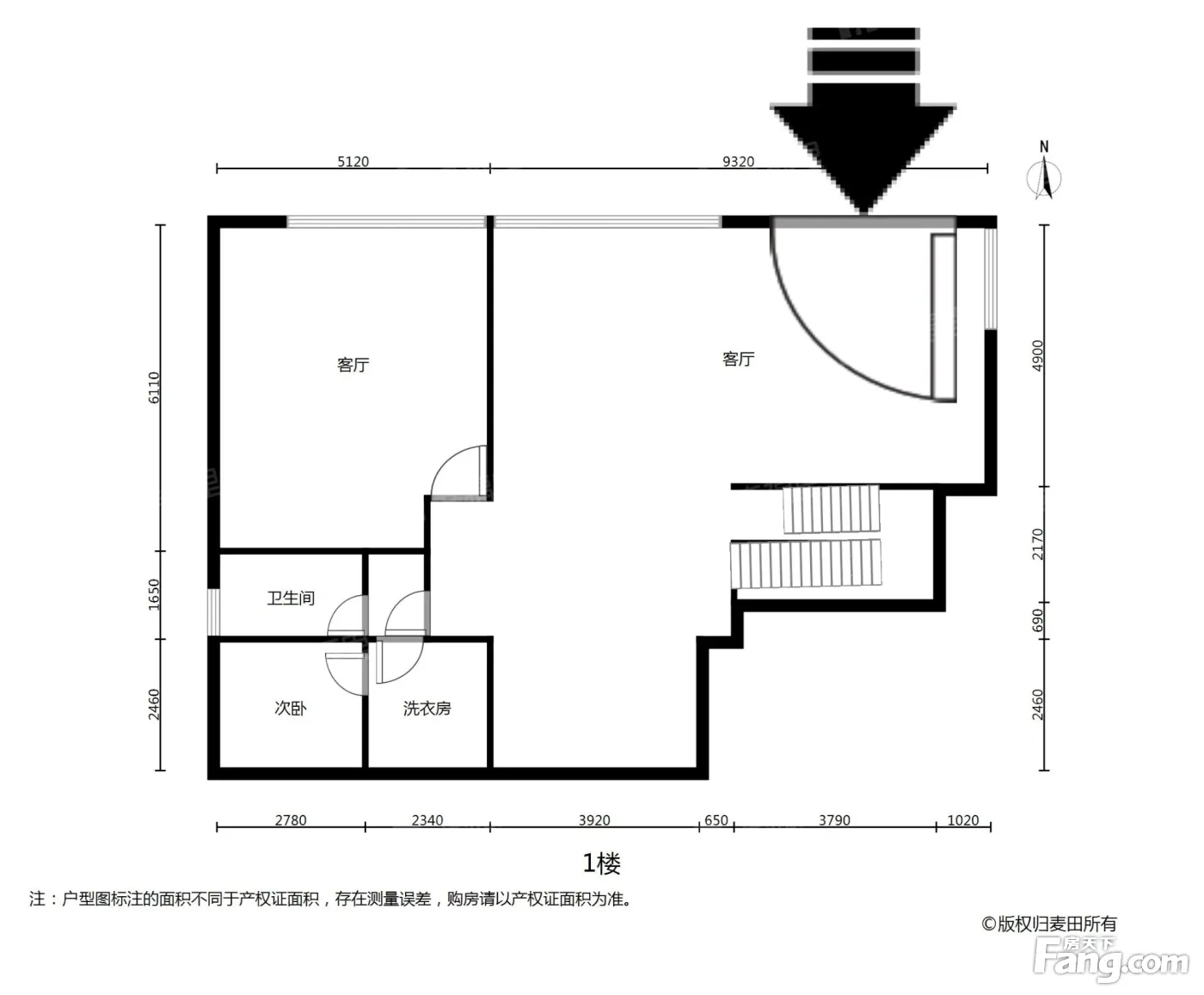
5室2厅4卫
户型
-
490.21㎡
建筑面积
买房加房产交流群,省钱不踩雷
3000+人正在热聊
加入群聊
-
单价
17951元/平米
- 挂牌价格解析
-
楼层
4层
- 咨询楼层
-
套内
489.21㎡
- 咨询套内使用面积
-
楼型
独栋
-
朝向
南
-
装修
豪华装修
-
年代
2013
-
发布
2025-11-19
-
地铁
距2号线沙堤站约1038米
-
咨询总首付
首付约304.5万
首付税费及佣金情况 -
深度测评
小区新东阳高尔夫球场(闽侯-上街)
-
更多
楼户比、楼层高度、交易历史、抵押信息
房源描述(1)
-
核心卖点问经纪人
豪华装修五百万,D铁口,云亩天朗独栋别墅 沿湖带私家码头,家门口独钓寒江雪 买不买没关系,都可以过来欣赏下房子心情都会有不一样的感觉 买房找我,真心相待,全力以赴,永泰小哥竭诚为您 你好,我来自永泰-嵩口(历史文化古镇)欢迎来嵩口一日游,我是房产小陈,你是想咨询哪里的房子呢,我手上有N多的房源供你选择,从小到单身公寓,大到独栋别墅,毛坯,高装修等等都有!一手新房有三四十个合作项目,首付十来万到百万不等
-
业主心态问经纪人
房东置换,诚心出售,欢迎看房,随时恭候您的到来。
-
小区配套问经纪人
小区环境优雅,配套完善成熟,周边生活便利,居住舒适。
-
服务介绍问经纪人
本人从事房产多年,专注上街福州板块(融侨外滩,金山,永嘉天地,金桥花园爱丁堡二期,爱丁堡,闽都,钱隆一带,英泰板块,云亩天朗别墅,龙江云山墅别墅,,阳光理想城揽香,揽月,丹宁顿别墅等等别墅板块,刚需板
-
税费分析房贷计算
产权干净,税费清晰,欢迎咨询该房屋详情,静候您的!
周边配套
地址:国宾大道588号
交通综合评分
查看全部7.0
“较好”
超过福州6.4%的小区
-
地铁公交
10.0
-
驾车出行
10.0
猜你喜欢
同小区其它房源
-
12075元/㎡
本月挂牌均价
-
0.2%
环比上月
买房加房产交流群,省钱不踩雷
3000+人正在热聊
加入群聊
- 免费咨询
- 专业服务
- 区域解读
- 户型分析
免责声明:房源信息由网站用户提供,其真实性、合法性由信息提供者负责,最终以政府部门登记备案为准。本网站不声明或保证内容之正确性和可靠性,购买该房屋时,请谨慎核查。入学情况仅凭历史经验总结,在此不承诺升学事宜。请您在签订合同之前,切勿支付任何形式的费用,以免上当受骗。


