长征小区两室一厅一卫一厨80.5平40.8万
-
39.7万
总价
-
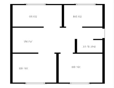
3室1厅
户型
-
80.89㎡
建筑面积
买房加房产交流群,省钱不踩雷
3000+人正在热聊
加入群聊
-
单价
4908元/平米
- 挂牌价格解析
-
楼层
低楼层/6层
- 咨询楼层
-
套内
暂无数据
- 咨询套内使用面积
-
楼型
板楼
-
朝向
南
-
装修
毛坯
-
供暖
集中供暖
-
发布
2024-10-28
-
地铁
暂无数据
-
咨询总首付
首付约12.4万
首付税费及佣金情况 -
深度测评
小区长征小区(瓦房店-岗店)
-
更多
楼户比、楼层高度、交易历史、抵押信息
周边配套
地址:瓦房店五一路一段889
交通综合评分
查看全部3.2
“一般”
超过大连5.4%的小区
-
地铁公交
5.0
-
城际交通
4.0
本月均价 5017元/m²
环比上月 上涨 0.52%
同比去年 下跌 10.03%
猜你喜欢
同小区其它房源
户型齐全,主打户型方正,客厅朝南,主卧朝南一居
长征小区户型主要有32平-50平的户型方正,客厅朝南,主卧朝南的一居 、46平-76平的户型方正,明厨,主卧朝南的二居 、70平-70平的户型方正,明厨,客厅朝南,双卧朝南的三居 。
*获取完整户型报告,同时会有免费语音讲解服务
-
6156元/㎡
本月挂牌均价
-
0.56%
环比上月
买房加房产交流群,省钱不踩雷
3000+人正在热聊
加入群聊
免责声明:房源信息由网站用户提供,其真实性、合法性由信息提供者负责,最终以政府部门登记备案为准。本网站不声明或保证内容之正确性和可靠性,购买该房屋时,请谨慎核查。入学情况仅凭历史经验总结,在此不承诺升学事宜。请您在签订合同之前,切勿支付任何形式的费用,以免上当受骗。



