配套成熟,交通便利,买菜购物方便,小合格区管理好
-
28.8万
总价
-
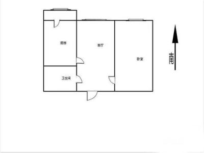
1室1厅
户型
-
49.82㎡
建筑面积
买房加房产交流群,省钱不踩雷
3000+人正在热聊
加入群聊
-
单价
5781元/平米
- 挂牌价格解析
-
楼层
低楼层/7层
- 咨询楼层
-
套内
暂无数据
- 咨询套内使用面积
-
楼型
板楼
-
朝向
南
-
装修
精装
-
供暖
集中供暖
-
发布
2024-05-21
-
地铁
距3号线支线和平路站约452米
-
咨询总首付
首付约9.3万
首付税费及佣金情况 -
深度测评
小区建兴苑(金州-和平路)
-
更多
楼户比、楼层高度、交易历史、抵押信息
周边配套
地址:金州解放路近解放广场
交通综合评分
查看全部7.1
“较好”
超过大连68.2%的小区
-
地铁公交
8.0
-
驾车出行
9.0
-
城际交通
4.0
本月均价 6153元/m²
环比上月 下跌 2.53%
同比去年 下跌 15.21%
猜你喜欢
同小区其它房源
户型齐全,主打户型方正,明厨,主卧朝南二居
建兴苑户型主要有50平-105平的户型方正,明厨,主卧朝南的二居 、66平-98平的户型方正,明厨的三居 、39平-40平的户型方正,明厨,主卧朝南的一居 。
*获取完整户型报告,同时会有免费语音讲解服务
-
7273元/㎡
本月挂牌均价
-
0.1%
环比上月
买房加房产交流群,省钱不踩雷
3000+人正在热聊
加入群聊
免责声明:房源信息由网站用户提供,其真实性、合法性由信息提供者负责,最终以政府部门登记备案为准。本网站不声明或保证内容之正确性和可靠性,购买该房屋时,请谨慎核查。入学情况仅凭历史经验总结,在此不承诺升学事宜。请您在签订合同之前,切勿支付任何形式的费用,以免上当受骗。



