凯旋城东区 1室1厅 精装修
-
23万
总价
-
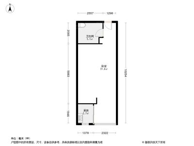
1室1厅1卫
户型
-
33.85㎡
建筑面积
买房加房产交流群,省钱不踩雷
3000+人正在热聊
-
单价
6795元/平米
- 挂牌价格解析
-
楼层
低层/25层
- 咨询楼层
-
套内
暂无数据
- 咨询套内使用面积
-
楼型
板楼
-
朝向
南
-
装修
精装修
-
年代
2012
-
发布
2026-01-15
-
地铁
距2号线三角场站约943米
-
咨询总首付
首付约6.2万
首付税费及佣金情况 -
深度测评
小区凯旋城(天宁-红梅翠竹)
-
更多
楼户比、楼层高度、交易历史、抵押信息
房源描述(1)
-
核心卖点问经纪人
相信为您推荐的这套房子您一定会满意,赶快行动吧,先到先得! 房屋年代∶2012年,房屋面积∶33.85平方米,朝向∶正南 1. 小区配备良好物业管理,让你享受宾至如归的服务; 2. 小区人文素质高,是您的居家的品质选择; 3. 小区环境安静舒适,让您拥有高品质的生活环境; 4. 小区绿化高,绿树成荫鸟语花香让您随时呼吸到新鲜空气。
周边配套
交通综合评分
查看全部超过常州57.8%的小区
-
地铁公交
10.0
-
驾车出行
7.0
-
城际交通
4.0
本月均价 10431元/m²
环比上月 下跌 1.88%
同比去年 下跌 14.38%
猜你喜欢
同小区其它房源
户型齐全,主打明厨,明卫,双阳台,主卧朝南三居
凯旋城户型主要有109平-137平的明厨,明卫,双阳台,主卧朝南的三居 、62平-94平的客厅朝南,明卫,明厨的二居 。
*获取完整户型报告,同时会有免费语音讲解服务
-
12070元/㎡
本月挂牌均价
-
0.68%
环比上月
买房加房产交流群,省钱不踩雷
3000+人正在热聊
- 免费咨询
- 专业服务
- 区域解读
- 户型分析

