一号桥 万科翡翠都会三房335万
-
335万
总价
-
3室2厅2卫
户型
-
110.5㎡
建筑面积
买房加房产交流群,省钱不踩雷
3000+人正在热聊
-
单价
30316元/平米
- 挂牌价格解析
-
楼层
低楼层/35层
- 咨询楼层
-
套内
87.5㎡
- 咨询套内使用面积
-
朝向
东
-
装修
中装修
-
年代
2018
-
发布
2025-10-01
-
地铁
距2号线黄花园站约214米
-
咨询总首付
首付约100.9万
首付税费及佣金情况 -
深度测评
小区万科翡翠都会(渝中-解放碑)
-
更多
楼户比、楼层高度、交易历史、抵押信息
房源描述(3)
-
核心卖点
万科翡翠都会位于重庆渝中区核心地段,小区品质优越,物业类型为住宅,2020年建成,建筑年代新,居住舒适度高。本套房源建筑面积111平米,设计为3室2厅2卫1厨1阳台的格局,空间布局合理,满足家庭多样化需求。房源位于低楼层,总楼层42层,东南朝向,采光通风俱佳,精装修交付,品质有保障,且房本已满二,交易成本较低。 该房源总价327万,单价29459元/平米,性价比突出。万科品牌加持,小区环境与物业管理均为区域标杆,适合追求品质生活的购房者。无论是自住还是长期持有,这套房源都是渝中区不可多得的优质选择。
-
核心卖点
1:B蜀,B蜀陪房,离校近 2:户型方正,采光好 3:视野开阔,无遮挡 4:配套齐全,近地铁,医院,商场
-
核心卖点
这套位于重庆渝中一号桥北区北区路162号万科翡翠都会的住宅,是2020年建成的次新房,房本已满两年。房屋建筑面积111平米,采用精装修标准,整体保养良好。户型为实用的3室2厅2卫1厨1阳台格局,满足家庭居住需求。 房屋位于总高42层建筑的低楼层,东南朝向保证了良好的采光和通风。小区由知名开发商万科打造,物业管理规范。当前挂牌价325万,折合单价29279元/平米,性价比突出。该区域生活配套成熟,交通便利,是自住改善的理想选择。
-
业主心态
业主注重居住环境,要求物业服务高效、安保到位、设施完好;重视隐私与安全;希望邻里和谐又有私人空间;关注小区规划,要求知情权与参与权;对费用支出期望账目透明、物有所值 ,以求安居乐业。
-
小区配套
内部配套:有休闲广场、花园,可供休憩赏景;健身区配备多样器材,还有球类场地;专设儿童游乐区;物业服务专业,保障安全与整洁。 周边配套:交通便利,公交、地铁俱全,驾车出行畅达;资源丰富,幼、小、都有;医疗配套完善,社区卫生服务中心近,大医院不远;商业发达,购物中心汇聚购物、餐饮、娱乐,还有菜市场与超市。
-
服务介绍
服务涵盖:依预算、户型、朝向、配套需求精准荐房; 陪看讲解,凸显房屋与小区优势;全程协办贷款、过户等流程。
-
税费分析房贷计算
契税 首套房:房屋面积在 140平方米及以下的,按 1% 的税率征收;面积在140平方米以上的,按 1.5% 征收。 二套房:面积在140平方米及以下的,按 1% 征收;面积在 140 平方米以上的,按 2% 征收。 三套房及以上:不论面积大小,均按 3% 征收。 印花税:免
-
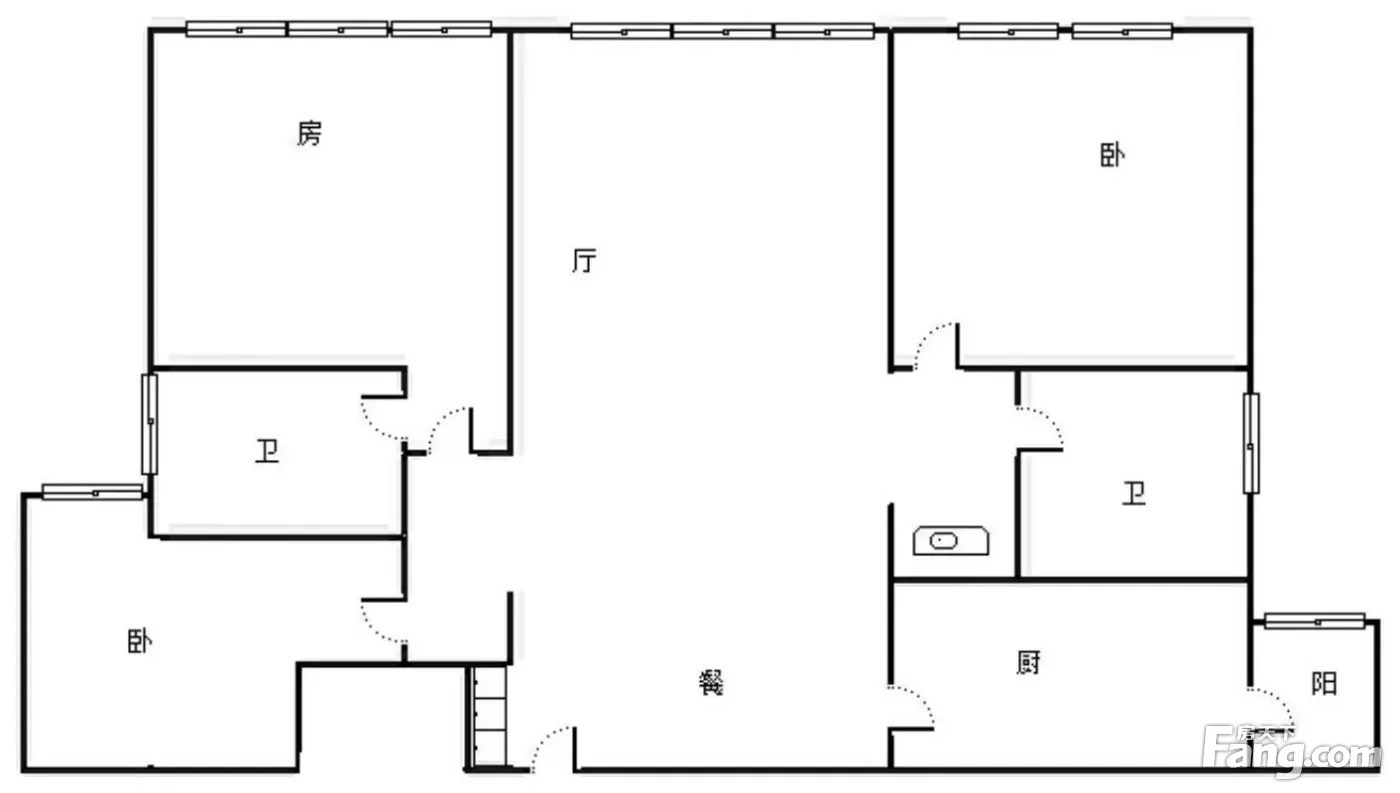
户型解读
整体布局:户型方正,空间利用率高。动静分区合理,活动与休息区域互不干扰。 空间细节:客厅宽敞,与餐厅相连,带阳台,空间通透。卧室为三居室,主卧带独卫,带飘窗。厨房操作台面宽敞,生活阳台。卫生间为明卫,通风好。 采光通风:全明户型,采光佳,室内明亮。采光通风通透,通风好,空气易流通。 朝向景观:朝南温暖明亮,南北通透通风好。楼层可赏小区景观,也可看江景及城市街景。
周边配套
交通综合评分
查看全部超过重庆26.5%的小区
-
地铁公交
10.0
-
驾车出行
10.0
本月均价 28544元/m²
环比上月 上涨 0.3%
同比去年 下跌 3.04%
猜你喜欢
同小区其它房源
-
10885元/㎡
本月挂牌均价
-
1.21%
环比上月
买房加房产交流群,省钱不踩雷
3000+人正在热聊
- 免费咨询
- 专业服务
- 区域解读
- 户型分析




