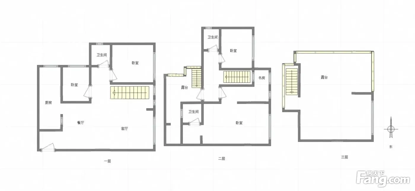
顶跃带100平 大露台 全新法式风格精装修 采光通透视野开阔
-
166万
总价
-
4室2厅3卫
户型
-
125.84㎡
建筑面积
买房加房产交流群,省钱不踩雷
3000+人正在热聊
-
单价
13191元/平米
- 挂牌价格解析
-
楼层
高层/10层
- 咨询楼层
-
套内
暂无数据
- 咨询套内使用面积
-
楼型
板楼
-
朝向
南
-
装修
精装修
-
年代
2024
-
发布
2025-12-31
-
地铁
距18号线重庆理工大学站约210米
-
咨询总首付
首付约42.2万
首付税费及佣金情况 -
深度测评
小区曦圆南城(巴南-李家沱)
-
更多
楼户比、楼层高度、交易历史、抵押信息
房源描述(1)
-
核心卖点问经纪人
小区介绍:小区环境优美,周边配套齐全,交通便利,出行非常方便 房屋介绍: 1、 房屋年代:2024年 2、 房屋正气,性价比高 3、 朝向:南 4、 房屋优点:采光充足,视野宽阔
-
业主心态问经纪人
业主很信任我,我能了解业主卖房新的动态。目前政策已经基本稳定,是入手的好时候。请不要错过性价比高的好房。
-
小区配套问经纪人
位置:小区地理位置佳,绿化率高,居民素质高 配套:有健身器材,小型篮球场,可供小区居民使用 车位:停车位充足,建有地上停车场和地下车库 保安:小区内24保安巡逻
-
服务介绍问经纪人
本人从事房地产多年,公司有大量好房源,欢迎进入我的店铺查看,欢迎随时电话咨询,相信我的专业,为您置业安家保驾护航。
周边配套
交通综合评分
查看全部超过重庆0.0%的小区
-
地铁公交
5.0
-
驾车出行
10.0
本月均价 6831元/m²
环比上月 下跌 0.09%
同比去年 下跌 32.36%
猜你喜欢
同小区其它房源
-
6996元/㎡
本月挂牌均价
-
0.7%
环比上月
买房加房产交流群,省钱不踩雷
3000+人正在热聊
- 免费咨询
- 专业服务
- 区域解读
- 户型分析

