叠彩西城精装三房 满二东向低层 总价57万 赠全新家具
-
57万
总价
-
3室2厅1卫
户型
-
71㎡
建筑面积
买房加房产交流群,省钱不踩雷
3000+人正在热聊
-
单价
8028元/平米
- 挂牌价格解析
-
楼层
低层/33层
- 咨询楼层
-
套内
暂无数据
- 咨询套内使用面积
-
楼型
板楼
-
朝向
东
-
装修
精装修
-
发布
2025-11-10
-
地铁
距5号线半山站约819米
-
咨询总首付
首付约14.8万
首付税费及佣金情况 -
深度测评
小区叠彩西城(九龙坡-华岩新城)
-
更多
楼户比、楼层高度、交易历史、抵押信息
房源描述(1)
-
核心卖点问经纪人
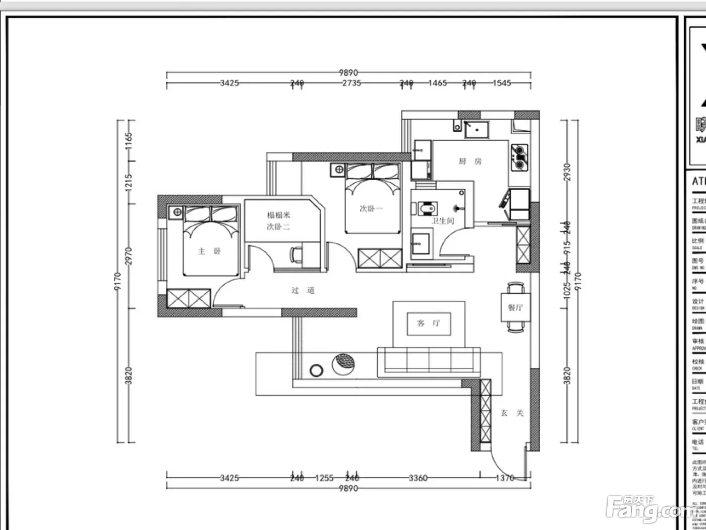
该房源位于九龙坡华岩新城叠彩西城小区,为精装修住宅,建筑面积71平米,设计为3室2厅1卫的实用户型,附带1个阳台,空间布局合理,满足家庭多样化居住需求。房屋朝向东,采光良好,位于低楼层,出入便捷,所在楼栋总高33层,视野开阔。 产权清晰,房本已满两年,交易税费较低。总价仅57万,单价8028元/平米,性价比突出。小区周边生活配套成熟,交通便利,适合刚需购房者或改善型家庭考虑。
周边配套
交通综合评分
查看全部超过重庆87.3%的小区
-
地铁公交
10.0
-
驾车出行
10.0
-
城际交通
4.0
本月均价 6991元/m²
环比上月 下跌 2.02%
同比去年 下跌 8.49%
猜你喜欢
同小区其它房源
户型齐全,主打明卫,双阳台,主卧朝南二居
叠彩西城户型主要有65平-84平的明卫,双阳台,主卧朝南的二居 、65平-104平的户型方正,明卫,明厨的三居 、39平-54平的明厨,明卫,客厅朝南,全明格局的一居 。
*获取完整户型报告,同时会有免费语音讲解服务
-
7948元/㎡
本月挂牌均价
-
0.77%
环比上月
买房加房产交流群,省钱不踩雷
3000+人正在热聊
- 免费咨询
- 专业服务
- 区域解读
- 户型分析

