(现房直降80万)礼嘉大平层,200平大4房,巴-蜀中學书包
-
172万
总价
-
4室2厅3卫
户型
-
200㎡
建筑面积
买房加房产交流群,省钱不踩雷
3000+人正在热聊
-
单价
8600元/平米
- 挂牌价格解析
-
楼层
中层/31层
- 咨询楼层
-
套内
170㎡
- 咨询套内使用面积
-
楼型
板楼
-
朝向
南
-
装修
毛坯
-
年代
2022
-
发布
2026-01-21
-
地铁
距国博线欢乐谷约56米
-
咨询总首付
首付约57.7万
首付税费及佣金情况 -
深度测评
小区北恒紫云(两江新区-礼嘉)
-
更多
楼户比、楼层高度、交易历史、抵押信息
房源描述(1)
-
核心卖点问经纪人
项目卖点: 1、现房 :实景呈现,所见及所得 2、双轻轨:6号线欢乐谷站,15号线在建中 3、教-育:划片区礼嘉实-验1小,两江巴-蜀中-学 4、观江:大平层高区看江视野极佳
-
业主心态问经纪人
1、本房源为一手新房,公司代理销售,不收取任何费用,并能享受购房专场优惠。 2、全程接送客户,陪同客户看房选房,买房是大事,实地考察看看很重要。
-
小区配套问经纪人
1、商业配套: 以我们项目为中心,开车2公里、5就是礼嘉商圈。 金州商圈:光环购物公园+爱琴海购物公园 礼嘉商圈:礼嘉龙湖天街,山姆会员超市 2、医疗配套: 金山医院、礼嘉儿童医院(排名前3)、重庆市人民医院 3、生活配套: 9大公园环伺,出门即金海海湾江公园 (金海湾滨公园占地4800亩,总长16km嘉陵江岸线),多个高端改善项目年底交付,区域人气聚集,嘉景湾5公里范围内,繁华与生活自由切换 4、轨道交通:6号线(礼嘉站、金山寺站)、6号线支线(欢乐谷站、黄茅坪站) 规划中:15号线(沙坪坝区双碑至渝北龙兴)
-
服务介绍问经纪人
从事房地产8年有余,熟悉主城区300多个新盘,在房地产领域我擅长区域分析、政策了解、区位价格以及未来规划等,根据您的需求精准配盘,让您看房省时省心。欢迎咨询:181 8319 1810(微Xin同号)
-
税费分析房贷计算
1、契税:家庭为单位:首套房:1.5%;二套房:2%;三套及以上3%。 2、大修基金:建面*80㎡;
-
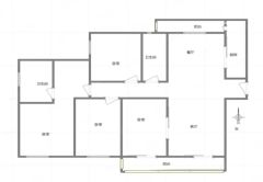
户型解读问经纪人
礼嘉核心位置 现房❶❹❺万起 礼嘉➕两江旁 𝟏.𝟔万方超大中庭 轻轨𝟎距离 建面𝟏𝟐𝟗㎡;建面𝟏𝟑𝟒㎡ 建面𝟏𝟑𝟗㎡;建面𝟐𝟎𝟎㎡ 建面𝟏𝟎𝟕㎡;建面𝟏𝟓𝟎㎡ 瞰江大平层 𝟒号楼 𝟑𝙏𝟐𝙃 𝟑𝟎𝙁 大平层4#:建面:𝟐𝟓𝟏㎡
周边配套
交通综合评分
查看全部超过重庆0.0%的小区
-
地铁公交
9.0
-
驾车出行
9.0
本月均价 13017元/m²
环比上月 下跌 0.3%
同比去年 上涨 4.83%
猜你喜欢
同小区其它房源
户型齐全,主打户型方正,动静分离三居
星悦·北恒紫云户型主要有129平-150平的户型方正,动静分离的三居 、200平-200平的户型方正,动静分离,高附赠空间的四居 。
*获取完整户型报告,同时会有免费语音讲解服务
-
15401元/㎡
本月挂牌均价
-
0.71%
环比上月
买房加房产交流群,省钱不踩雷
3000+人正在热聊
- 免费咨询
- 专业服务
- 区域解读
- 户型分析


