业主自售渝北 星悦·北恒紫云 4室2厅
-
190万元
总价
-
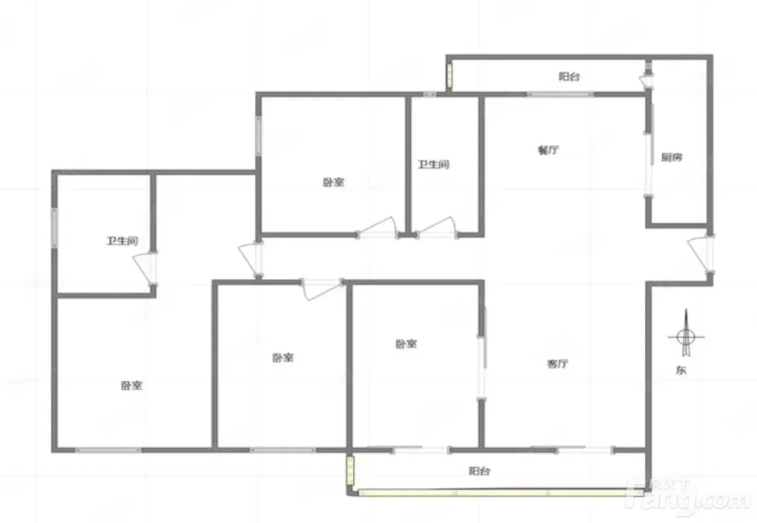
4室2厅2卫
户型
-
149.66㎡
建筑面积
买房加房产交流群,省钱不踩雷
3000+人正在热聊
加入群聊
-
单价
12695元/平米
- 挂牌价格解析
-
楼层
中层/33层
- 咨询楼层
-
套内
暂无数据
- 咨询套内使用面积
-
朝向
南
-
年代
2022
-
发布
2024-10-25
-
地铁
距国博线欢乐谷约56米
-
咨询总首付
首付约63.4万
首付税费及佣金情况 -
深度测评
小区星悦·北恒紫云(两江新区-礼嘉)
-
更多
楼户比、楼层高度、交易历史、抵押信息
业主自评
-
111
加入房天下4327天
接电时间:09:00-22:00
业主自售房,可随时过户。
业主自售房,可随时过户。
周边配套
地址:嘉康路(欢乐谷轻轨站旁)
交通综合评分
查看全部6.3
“较好”
超过重庆0.0%的小区
-
地铁公交
9.0
-
驾车出行
9.0
本月均价 13017元/m²
环比上月 下跌 0.3%
同比去年 上涨 4.83%
猜你喜欢
同小区其它房源
户型齐全,主打户型方正,动静分离三居
星悦·北恒紫云户型主要有129平-150平的户型方正,动静分离的三居 、200平-200平的户型方正,动静分离,高附赠空间的四居 。
*获取完整户型报告,同时会有免费语音讲解服务
-
15401元/㎡
本月挂牌均价
-
0.71%
环比上月
买房加房产交流群,省钱不踩雷
3000+人正在热聊
加入群聊
联系业主
免责声明:房源信息由网站用户提供,其真实性、合法性由信息提供者负责,最终以政府部门登记备案为准。本网站不声明或保证内容之正确性和可靠性,购买该房屋时,请谨慎核查。入学情况仅凭历史经验总结,在此不承诺升学事宜。请您在签订合同之前,切勿支付任何形式的费用,以免上当受骗。

