世纪城 垂虹园 高层观景 四居室 餐客分离 通风好
-
1980万
总价
-
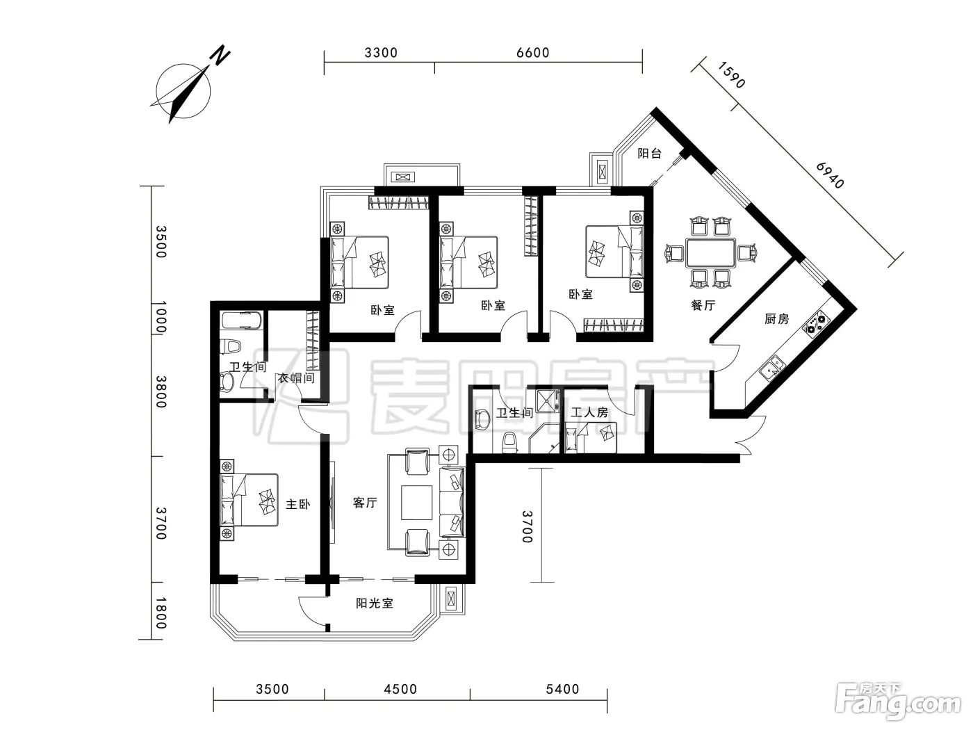
4室2厅
户型
-
207.22㎡
建筑面积
买房加房产交流群,省钱不踩雷
3000+人正在热聊
加入群聊
-
单价
95551元/平米
- 挂牌价格解析
-
楼层
高楼层/18层
- 咨询楼层
-
套内
暂无数据
- 咨询套内使用面积
-
楼型
塔楼
-
朝向
东西南北
-
装修
其他
-
供暖
集中供暖
-
年代
2004
-
发布
2025-11-07
-
地铁
距12号线蓝靛厂站约650米
-
咨询总首付
首付约655.4万
首付税费及佣金情况 -
深度测评
小区世纪城垂虹园(海淀-世纪城)
-
更多
楼户比、楼层高度、交易历史、抵押信息
房源描述(4)
周边配套
地址:蓝靛厂中路,长春桥北
交通综合评分
查看全部4.0
“一般”
超过北京36.3%的小区
-
地铁公交
10.0
本月均价 90416元/m²
环比上月 下跌 2.96%
同比去年 下跌 13.96%
猜你喜欢
同小区其它房源
户型齐全,主打户型方正,明卫,双阳台三居
世纪城垂虹园户型主要有121平-172平的户型方正,明卫,双阳台的三居 、106平-122平的明厨,双卧朝南,主卧朝南的二居 、172平-208平的户型方正,明卫,独立衣帽间的四居 。
*获取完整户型报告,同时会有免费语音讲解服务
-
99213元/㎡
本月挂牌均价
-
0.27%
环比上月
买房加房产交流群,省钱不踩雷
3000+人正在热聊
加入群聊
- 免费咨询
- 专业服务
- 区域解读
- 户型分析
免责声明:房源信息由网站用户提供,其真实性、合法性由信息提供者负责,最终以政府部门登记备案为准。本网站不声明或保证内容之正确性和可靠性,购买该房屋时,请谨慎核查。入学情况仅凭历史经验总结,在此不承诺升学事宜。请您在签订合同之前,切勿支付任何形式的费用,以免上当受骗。


