独栋别墅,临河而居,房子位置比较好,满五年
-
1080万
总价
-
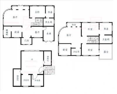
5室2厅
户型
-
197.48㎡
建筑面积
买房加房产交流群,省钱不踩雷
3000+人正在热聊
加入群聊
-
单价
54690元/平米
- 挂牌价格解析
-
楼层
2层
- 咨询楼层
-
套内
暂无数据
- 咨询套内使用面积
-
楼型
板楼
-
朝向
南北
-
装修
简装
-
供暖
自供暖
-
年代
1994
-
发布
2025-09-25
-
地铁
暂无数据
-
咨询总首付
首付约357.5万
首付税费及佣金情况 -
深度测评
小区枫露皇苑(通州-焦王庄)
-
更多
楼户比、楼层高度、交易历史、抵押信息
周边配套
地址:北关环岛东北侧1000米
交通综合评分
查看全部6.2
“较好”
超过北京79.1%的小区
-
地铁公交
8.0
-
驾车出行
10.0
猜你喜欢
同小区其它房源
买房加房产交流群,省钱不踩雷
3000+人正在热聊
加入群聊
免责声明:房源信息由网站用户提供,其真实性、合法性由信息提供者负责,最终以政府部门登记备案为准。本网站不声明或保证内容之正确性和可靠性,购买该房屋时,请谨慎核查。入学情况仅凭历史经验总结,在此不承诺升学事宜。请您在签订合同之前,切勿支付任何形式的费用,以免上当受骗。



