满五年 省心装修 保护好 南北通透 大阳台 落地窗 位置安静
-
696万
总价
-
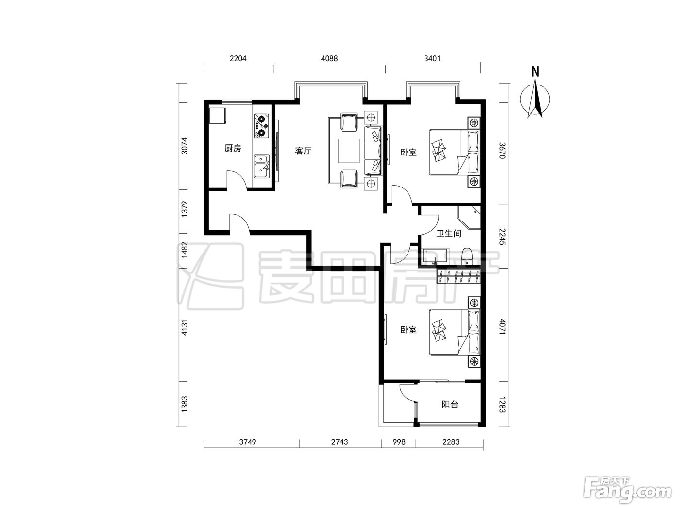
2室1厅1卫
户型
-
98㎡
建筑面积
买房加房产交流群,省钱不踩雷
3000+人正在热聊
加入群聊
-
单价
71020元/平米
- 挂牌价格解析
-
楼层
低楼层/12层
- 咨询楼层
-
套内
暂无数据
- 咨询套内使用面积
-
楼型
塔板结合
-
朝向
南北
-
装修
精装修
-
发布
2025-06-10
-
地铁
距13号线清河站约814米
-
咨询总首付
首付约387.4万
首付税费及佣金情况 -
深度测评
小区当代城市家园(海淀-上地)
-
更多
楼户比、楼层高度、交易历史、抵押信息
房源描述(2)
周边配套
地址:安宁庄西路9号院
交通综合评分
查看全部7.0
“较好”
超过北京85.5%的小区
-
地铁公交
10.0
-
驾车出行
10.0
本月均价 73904元/m²
环比上月 下跌 1.32%
同比去年 下跌 12.76%
猜你喜欢
同小区其它房源
户型齐全,主打明厨,客厅朝南,主卧朝南二居
当代城市家园户型主要有42平-119平的明厨,客厅朝南,主卧朝南的二居 、36平-79平的户型方正,明厨,主卧朝南的一居 、82平-165平的户型方正,明卫,客厅朝南,双阳台的三居 。
*获取完整户型报告,同时会有免费语音讲解服务
-
78171元/㎡
本月挂牌均价
-
2.82%
环比上月
买房加房产交流群,省钱不踩雷
3000+人正在热聊
加入群聊
- 免费咨询
- 专业服务
- 区域解读
- 户型分析
免责声明:房源信息由网站用户提供,其真实性、合法性由信息提供者负责,最终以政府部门登记备案为准。本网站不声明或保证内容之正确性和可靠性,购买该房屋时,请谨慎核查。入学情况仅凭历史经验总结,在此不承诺升学事宜。请您在签订合同之前,切勿支付任何形式的费用,以免上当受骗。



