特价好房!壹品兴创元启 南北通透三居室 双阳台 看房方便
-
535万
总价
-
3室2厅2卫
户型
-
111㎡
建筑面积
买房加房产交流群,省钱不踩雷
3000+人正在热聊
-
单价
48198元/平米
- 挂牌价格解析
-
楼层
低层/11层
- 咨询楼层
-
套内
110㎡
- 咨询套内使用面积
-
楼型
板楼
-
朝向
南北
-
装修
精装修
-
年代
2026
-
发布
2026-01-28
-
地铁
暂无数据
-
咨询总首付
首付约160.4万
首付税费及佣金情况 -
深度测评
小区壹品兴创·元启(大兴-西红门)
-
更多
楼户比、楼层高度、交易历史、抵押信息
房源描述(1)
-
核心卖点问经纪人
核心卖点 壹品兴创·元启位于北京市大兴区,地处北京大兴西红门京开高速和南五环交叉口东北方向,由北京凤河桥北房地产开发有限公司倾心打造。
-
业主心态问经纪人
业主心态 为了更加直观,将日常的生活配套进一步细分为购物、休闲便利、医疗三个维度。该小区对比所在区域同物业类型楼盘周边配套中休闲便利、购物、医疗优于该区域内均值。 购物:周边3km(直线距离)内有4个购物中心,距离最近的鸿坤广场购物中心距离项目1244米,除此之外还有北京荟聚中心、绿地缤纷城(大兴店)等。有140个大型超市,距离最近的生活日用超市距离项目450米,除此之外还有沃米超市、爱家生活超市海子角店等。房东置换,诚心出售,可以再谈,欢迎看房,随时恭候。
-
小区配套问经纪人
小区配套 高速路口:周边3km(直线距离)内有3条高速公路,最近的高速路口是南五环路/李营桥/S50入口(路口),距离该楼盘2591米;有1个加油站,方便日常自驾车出行的业主。周边3km(直线距离)内有40个幼儿园,首都师范大学学前教育学院附属幼儿园(南校区)、大兴区罗兰春之声双语艺术幼儿园、大兴区蓝色未来幼儿园等。有3个小学,北京第二实验小学大兴实验学校、北京师大大兴附属小学、北京小学(翡翠城分校)等。有6个中学,北京市海淀区崛起实验学校(南校区)、兴海学校中学部、君谊中学等。小区地理位置佳,绿化环境优越整洁,居民素质高,物业管理完善,适宜居住
-
服务介绍问经纪人
服务信息 北京房产经济人刘洋,本人做房产多年,一直本着专业的房产知识,为您服务,我会在短的时间内帮您买好满意的房子,不让您错失任何好房子,更不让您每天为买房的事烦心,欢迎随时拨打我电话。
-
税费分析房贷计算
税费信息 关于本房的税费信息情况,请电话联系我,我将详细的为您讲解!
-
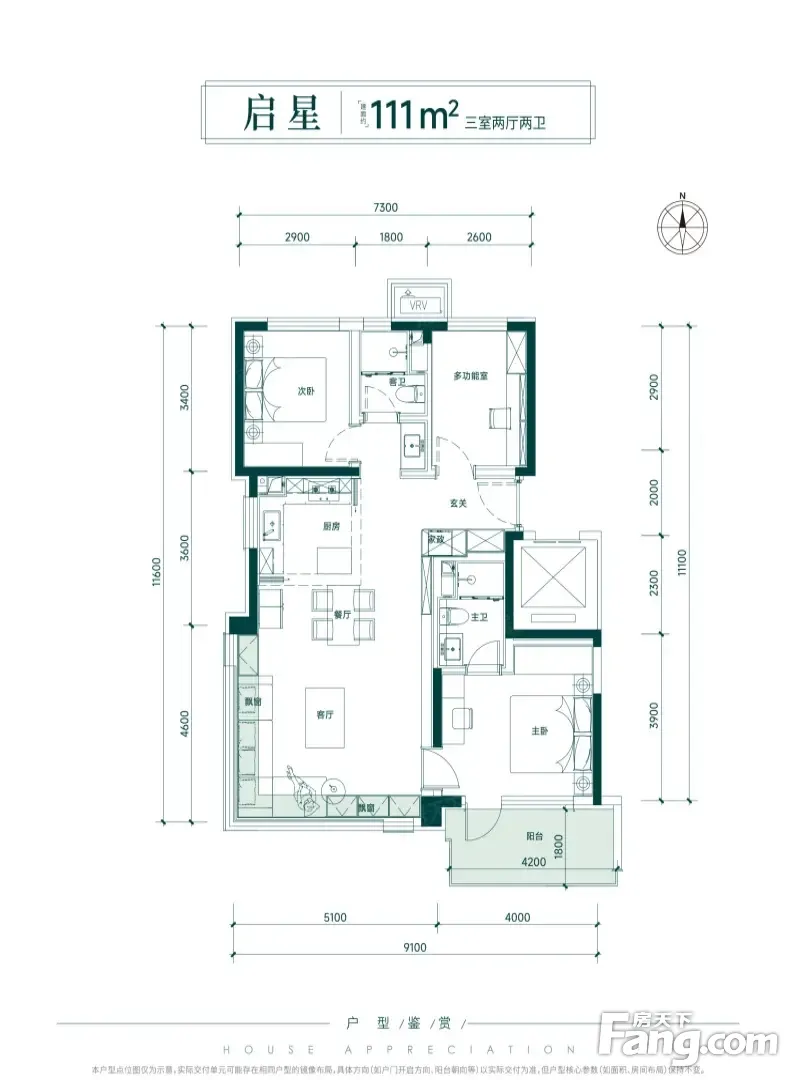
户型解读问经纪人
户型解读 社区内配备了如访客系统、可视对讲系统、周界防范报警系统等智能设备(具体配套设施以开发商公布为准),提升便捷度与安全性。人车分流,小区内道路行人与车辆分离开,互不干扰,降低停车压力、提升安全性,同时减少噪音和尾气的排放,增加舒适度。小区有明确的围墙和大门等边界,便于物业对于人员及车辆进出小区进行管理,提升安全感。舒适度:项目绿化率30.0%,绿化面积14110.0平方米。容积率2.5。项目规划地上车位0个、地下车位1297个房屋拥有相对宽松的尺寸,布局通透,动静分离,设计豪华
周边配套
本月均价 51631元/m²
环比上月 持平
同比去年 持平 持平
-
37582元/㎡
本月挂牌均价
-
1.03%
环比上月
买房加房产交流群,省钱不踩雷
3000+人正在热聊
- 免费咨询
- 专业服务
- 区域解读
- 户型分析


