北京海淀 第四代住宅,0公摊,地铁16号线通勤 西二旗,西城
-
1100万
总价
-
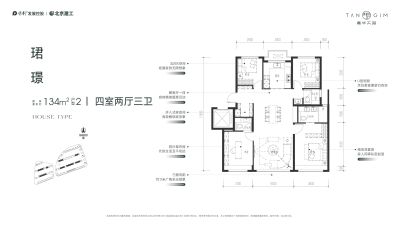
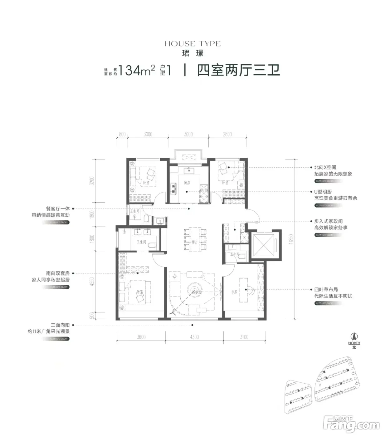
4室2厅3卫
户型
-
134㎡
建筑面积
买房加房产交流群,省钱不踩雷
3000+人正在热聊
-
单价
82090元/平米
- 挂牌价格解析
-
楼层
中层/11层
- 咨询楼层
-
套内
115.72㎡
- 咨询套内使用面积
-
楼型
板楼
-
朝向
南北
-
装修
精装修
-
年代
2025
-
发布
2025-12-16
-
咨询总首付
首付约791.4万
首付税费及佣金情况 -
深度测评
小区保利建工·嘉华天珺(海淀-上庄)
-
更多
楼户比、楼层高度、交易历史、抵押信息
房源描述(1)
-
核心卖点问经纪人
1、小区环境幽雅,看花园位置安静。 2、户型方正、装修保养得当,看房方便看中。 3、出入地铁公交方便,银行、大型,近中。 4、成熟小区,购物/休闲/娱乐/生活配套齐全。
-
业主心态问经纪人
业主诚心出售此房,欢迎您看房,如需了解其他信息请与我联系
-
小区配套问经纪人
楼盘名称:保利建工嘉华天珺 所属开发商产品线:保利物业 均价:865000元/平项目地址:西北旺镇永丰产业基地(新)H地块HD、0132.0162等地块 总栋数:26栋 总户数:1276户 产权年限:70年 建筑类型:板楼 占地面积:78800平米 建筑面积:149200平米 容积率:1.7 绿化面积:23640 绿化率:30% 总车位数:1531 底下车位:1531 车位配比:1:1.2 车位属性:出租+出售 出售价格:30-50W 出租价格:0.6-0.6K :80-85% 装修标准:精装修 装修情况:精装修 项目特点:人车分流封闭小区
-
服务介绍问经纪人
我从事房产行业多年,积累了大量的专业知识,也得到了业主、客户的信赖和认可,为您买到合适的房子是我的服务宗旨。
-
税费分析房贷计算
产权干净,税费清晰,欢迎来电咨询该房屋详情,静候您的来电!
-
户型解读问经纪人
四横三纵一轨道 城市引力圈 中关村旁 目式教育(具体交房划片为准) 约200米至大悦城 近享繁华 医研机构汇聚,护佑健康人生 约1千米至故宫北院,国脉文化坐标 光幕建筑,赋新人居审美,玉境花园,栖居自然之境 品牌国企,品质保障
周边配套
本月均价 81572元/m²
环比上月 上涨 7.67%
同比去年 持平 持平
-
45217元/㎡
本月挂牌均价
-
3.35%
环比上月
买房加房产交流群,省钱不踩雷
3000+人正在热聊
- 免费咨询
- 专业服务
- 区域解读
- 户型分析


