单价3万的别墅 水木兰亭 3室2厅2卫 南北通透 随时看房
-
580万
总价
-
3室2厅2卫
户型
-
163.7㎡
建筑面积
买房加房产交流群,省钱不踩雷
3000+人正在热聊
加入群聊
-
单价
35431元/平米
- 挂牌价格解析
-
楼层
5层
- 咨询楼层
-
套内
暂无数据
- 咨询套内使用面积
-
楼型
独栋
-
朝向
南
-
装修
精装修
-
年代
2005
-
发布
2025-12-10
-
地铁
距15号线国展站约880米
-
咨询总首付
首付约191.9万
首付税费及佣金情况 -
深度测评
小区水木兰亭别墅(顺义-中央别墅区)
-
更多
楼户比、楼层高度、交易历史、抵押信息
房源描述(1)
-
核心卖点问经纪人
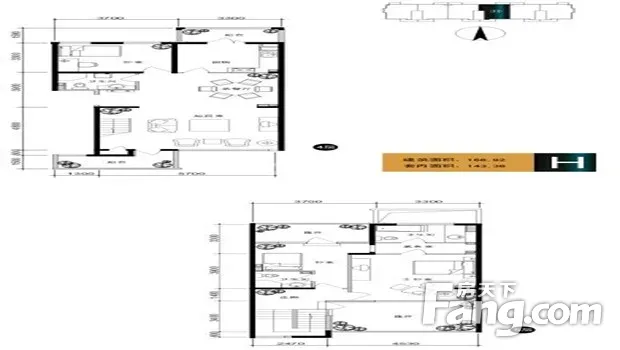
相信为您推荐的这套房子您一定会满意,赶快行动吧,先到先得! 房屋年代∶2005年,房屋面积∶163.7平方米,朝向∶正南 1. 小区配备良好物业管理,让你享受宾至如归的服务; 2. 小区人文素质高,是您的居家的品质选择; 3. 小区环境安静舒适,让您拥有高品质的生活环境; 4. 小区绿化高,绿树成荫鸟语花香让您随时呼吸到新鲜空气。
周边配套
地址:天竺镇府前一街58号
交通综合评分
查看全部7.7
“较好”
超过北京33.9%的小区
-
地铁公交
8.0
-
驾车出行
10.0
-
城际交通
5.0
猜你喜欢
同小区其它房源
户型齐全,主打户型方正,客厅朝南,独立衣帽间,主卧朝南四居
水木兰亭别墅户型主要有174平-245平的户型方正,客厅朝南,独立衣帽间,主卧朝南的四居 、154平-168平的独立衣帽间,明卫,明厨,主卧朝南的三居 、93平-96平的户型方正,明厨,客厅朝南,双阳台的二居 。
*获取完整户型报告,同时会有免费语音讲解服务
-
52028元/㎡
本月挂牌均价
-
1.68%
环比上月
买房加房产交流群,省钱不踩雷
3000+人正在热聊
加入群聊
- 免费咨询
- 专业服务
- 区域解读
- 户型分析
免责声明:房源信息由网站用户提供,其真实性、合法性由信息提供者负责,最终以政府部门登记备案为准。本网站不声明或保证内容之正确性和可靠性,购买该房屋时,请谨慎核查。入学情况仅凭历史经验总结,在此不承诺升学事宜。请您在签订合同之前,切勿支付任何形式的费用,以免上当受骗。

