地铁6号线运河商务区,4室2厅 合景中心 大4居,边户私密性
-
440万
总价
-
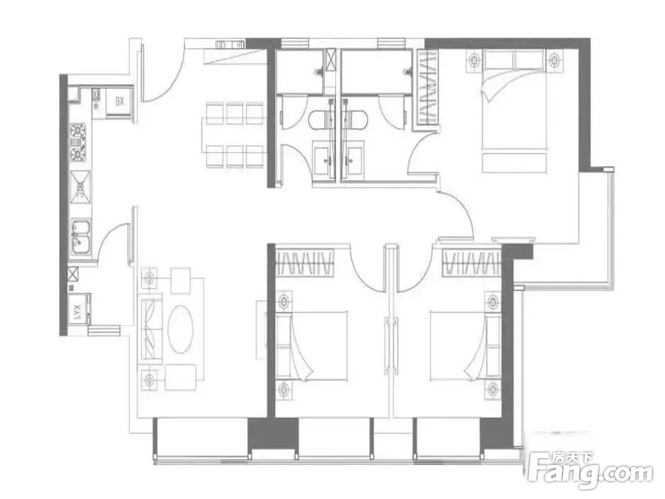
4室2厅1卫
户型
-
165㎡
建筑面积
买房加房产交流群,省钱不踩雷
3000+人正在热聊
-
单价
26667元/平米
- 挂牌价格解析
-
楼层
低层/35层
- 咨询楼层
-
套内
142.87㎡
- 咨询套内使用面积
-
楼型
板楼
-
朝向
南北
-
装修
精装修
-
年代
2025
-
发布
2025-12-25
-
地铁
距6号线通运门约886米
-
咨询总首付
首付约150.2万
首付税费及佣金情况 -
深度测评
小区合景中心公寓(通州-武夷花园)
-
更多
楼户比、楼层高度、交易历史、抵押信息
房源描述(1)
-
核心卖点问经纪人
1:房子空间大,采光好,比较安静。 2:有钥匙,看房方便,家电齐全,可以腾出地方或者配备您需要的。 3:周边交通方便,出行便利,大型等都有。
-
业主心态问经纪人
房东置换,诚心出售,可以再谈,欢迎看房,随时恭候。
-
小区配套问经纪人
小区地理位置佳,绿化环境优越整洁,居民素质高,物业管理完善,适宜
-
服务介绍问经纪人
本人做房产多年,一直本着专业的房产知识,为您服务,我会在短的时间内帮您买好满意的房子,不让您错失任何好房子,更不让您每天为买房的事烦心,欢迎随时拨打我电话。
-
税费分析房贷计算
关于本房的税费信息情况,请电话联系我,我将详细的为您讲解!
-
户型解读问经纪人
1.运河商务区商务型公寓,精装现房,也有毛坯房 2.成熟生活区,精装,买完即可入住。 3.首套二套均可首付50%,贷款10年。 4. 单价2.5万左右 77平两居 99平3居 112平 102平三居 117平3居 166平4居 1.运河商务区商务型公寓,精装现房,也有毛坯房 2.成熟生活区,精装,买完即可入住。 3.首套二套均可首付50%,贷款10年。 4. 单价2.5万左右 77平两居 99平3居 112平 102平三居 117平3居 166平4居
周边配套
交通综合评分
查看全部超过北京71.0%的小区
-
地铁公交
9.0
-
驾车出行
10.0
本月均价 27681元/m²
环比上月 下跌 1.33%
同比去年 下跌 16.82%
猜你喜欢
同小区其它房源
-
37076元/㎡
本月挂牌均价
-
1.4%
环比上月
买房加房产交流群,省钱不踩雷
3000+人正在热聊
- 免费咨询
- 专业服务
- 区域解读
- 户型分析


