新出房源!全额开票 枫蓝国际1500平 各付
-
3600万
总价
-
精装修
装修
-
1500㎡
建筑面积
买房加房产交流群,省钱不踩雷
3000+人正在热聊
-
楼层
高层/21层
-
单价
24000元/平米
-
楼盘名称
枫蓝国际写字楼
-
区域
海淀
-
类型
纯写字楼
-
等级
甲级
-
挂牌时间
2025-05-22
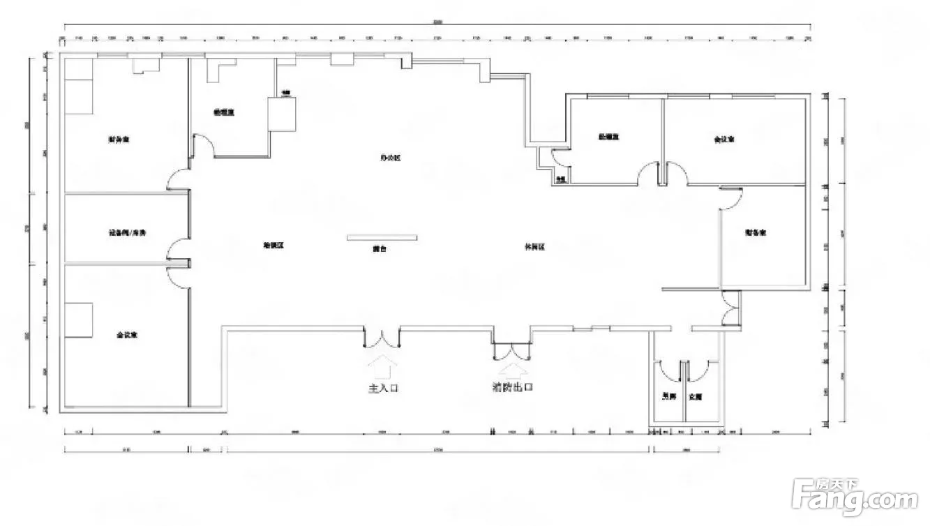
房源描述(1)
-
核心卖点问经纪人
项目名称:枫蓝国际 (2)项目地址:西直门北大街32 (3)建筑面积:1500平米 (4)房源单价:2.4万 (5)房源总价:3600万 (6)房屋状态:空置随时看 (7)产权方:个人 (8)交易方式:产权交易 (9)交易:少税 (10)是否有纠纷:无纠纷,放心购买! ———————————————————————————— 二、—公司服务 (1)全程看房,为您省时、省力! (2)专业团队为您匹配房源,让您省心、放心! (3)强大的资源系统让您360度全面了解项目、市场! (4)带看、签约、验房、交接全程参与,用无微不至的服务让您满意! (5)可提供全市写字楼市场报告、法律咨询、财税咨询、装修咨询、培训咨询! ————————————————————————————— 三、-公司简介 专注地产12年,目标是为客户提供高效安全的地产服务,并奠定了公司在该领域的领导品牌地位,我们不断创新服务模式,提高服务产品与服务质量,坚持不懈为客户提供更加完善的购房体验.
-
服务介绍问经纪人
本人从事房产行业多年,一直本着真诚,踏实,耐心的服务态度服务每一个客户。您能找到我,我就会像对待朋友,家人一样对待您。我们交易透明,不欺骗,会负责任的帮您安家置业。
-
周边配套问经纪人
户型好:采光通风良好,让您时刻感受温暖的阳光 装修佳:装修过生活,享受美好生活。 交通便利:多路公交,地铁,自驾都很方便。 小区环境优美,配套设施齐全 附近咖啡厅、健身房、电影院、商场、各种餐厅等设施齐全。
-
交通出行问经纪人
小区交通便利,出门有公交车,附近有地铁线路,节省时间,让您的出行多样且便利。
周边配套
交通综合评分
查看全部超过北京79.1%的小区
-
地铁公交
10.0
-
驾车出行
10.0
-
城际交通
4.0
猜你喜欢
同小区其它写字楼
- 免费咨询
- 专业服务
- 区域解读
- 户型分析


