地铁6号线北关。运河商务区。新光大尾盘出售 河景房 西海子旁
-
288万
总价
-
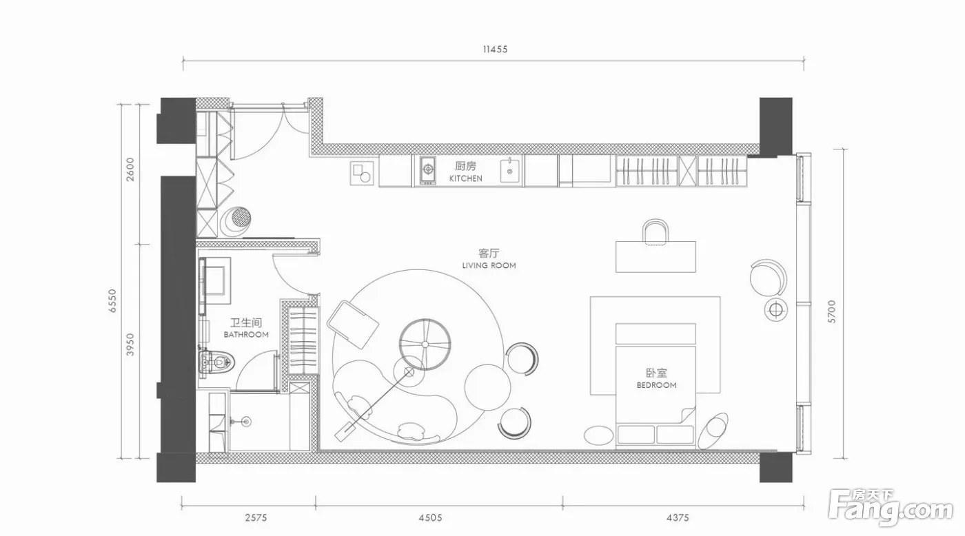
1室1卫
户型
-
97㎡
建筑面积
买房加房产交流群,省钱不踩雷
3000+人正在热聊
-
单价
29691元/平米
- 挂牌价格解析
-
楼层
中层/41层
- 咨询楼层
-
套内
86.33㎡
- 咨询套内使用面积
-
楼型
板楼
-
朝向
东北
-
装修
精装修
-
年代
2022
-
发布
2025-11-26
-
地铁
距6号线通州北关站约285米
-
咨询总首付
首付约86.1万
首付税费及佣金情况 -
深度测评
小区新光大中心公寓(通州-北关)
-
更多
楼户比、楼层高度、交易历史、抵押信息
房源描述(1)
-
核心卖点问经纪人
核心择址通州运河水岸经济带五河交汇核心区。 临300米河面,270度观景视角,同时坐拥滨江森林公园万绿意。 北京副中心五河交汇天幕平层建筑面积130—270万科精工1-3居室德国装甲铁门,顶天立地旭格系统窗,360度大尺度全景落地,与远洋乐堤港购物中心遥相呼应,滨江生活圈,北京版壮丽一英里8条轨道交通,3所医院,4个医疗医院B座双子塔归家大堂,首层,空中会所G层约600m业主私家会所包含健身,会客私董会所,私宴厅,游泳池,多功能厅150mA座空中茶亭,俯瞰五河交汇
-
业主心态问经纪人
本人从业多年,负责新房买卖和,掌握全北京的 房源发布动态,能快速按照您的需求匹配房源, 温馨提示:为了能详细给您介绍项目和了解您的需求,建议您可以请直 接来电或微聊留电话给我,我给您回电,假如因特殊情况微聊回复不及时,请包涵。 再次感谢您的信任和支持。
-
小区配套问经纪人
小区地理位置佳,绿化环境优越整洁,居民素质高,物业管理完善,适宜
-
服务介绍问经纪人
本人做房产多年,一直本着专业的房产知识,为您服务,我会在短的时间内帮您买好满意的房子,不让您错失任何好房子,更不让您每天为买房的事烦心,欢迎随时拨打我电话。
-
税费分析房贷计算
关于本房的税费信息情况,请电话联系我,我将详细的为您讲解!
周边配套
交通综合评分
查看全部超过北京20.4%的小区
-
地铁公交
9.0
-
驾车出行
10.0
本月均价 27303元/m²
环比上月 下跌 2%
同比去年 下跌 20.27%
猜你喜欢
同小区其它房源
户型齐全,主打客厅朝南一居
新光大中心公寓户型主要有43平-82平的客厅朝南的一居 、113平-117平的明厨,独立衣帽间,双卧朝南,主卧朝南的二居 、150平-151平的户型方正,明厨,客厅朝南,双卧朝南的三居 。
*获取完整户型报告,同时会有免费语音讲解服务
-
31535元/㎡
本月挂牌均价
-
2.92%
环比上月
买房加房产交流群,省钱不踩雷
3000+人正在热聊
- 免费咨询
- 专业服务
- 区域解读
- 户型分析


