地铁6号线通州北关站,运河商务区,精装河景现房,拎包入住
-
392万
总价
-
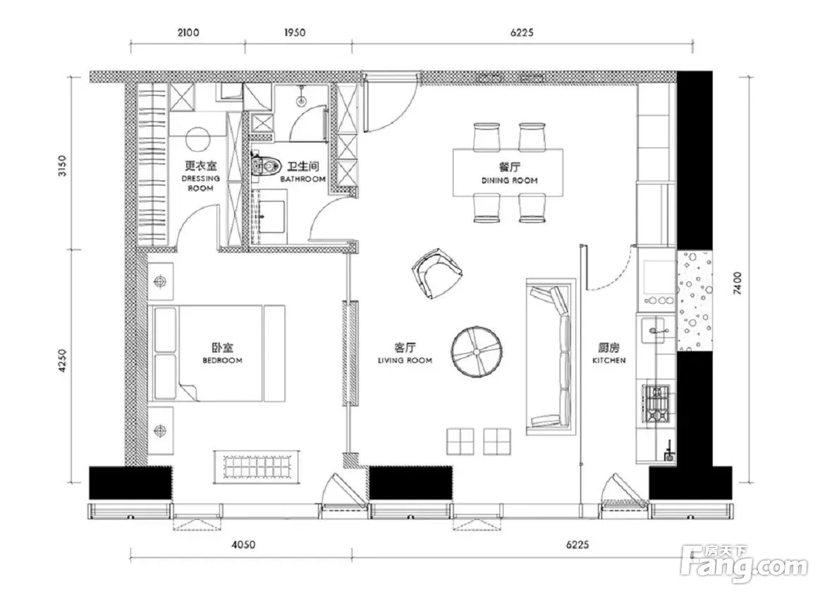
1室1厅1卫
户型
-
115㎡
建筑面积
买房加房产交流群,省钱不踩雷
3000+人正在热聊
-
单价
34087元/平米
- 挂牌价格解析
-
楼层
高层/41层
- 咨询楼层
-
套内
100.05㎡
- 咨询套内使用面积
-
楼型
板楼
-
朝向
东南
-
装修
豪华装修
-
年代
2024
-
发布
2025-11-26
-
地铁
距6号线通州北关站约285米
-
咨询总首付
首付约117.3万
首付税费及佣金情况 -
深度测评
小区新光大中心公寓(通州-北关)
-
更多
楼户比、楼层高度、交易历史、抵押信息
房源描述(1)
-
核心卖点问经纪人
在城市的绚烂之心,新光大中心ArtPark9巍然矗立,化身时代的瞩目焦点。 ArtPark9,距楼下咫尺之距便是地铁6号线通州北关站,便利您的出行,它立身于通州CBD运河核心区内,占据着得天独厚的地理优势,周边繁荣簇拥,却又不乏宁静与高雅。 ArtPark9,丰富多元的空间布局,满足您对生活的无尽想象。舒适的环境为您带来美好的体验。齐备的配套设施,为您的生活提供全方位的便利与享受。 新光大中心ArtPark9,不单单是一个项目,更是一种对美好生活的追索与向往。它乃城市的新兴,是艺术生活的者。于此,您将开启一段全新的人生征途,与艺术作伴,与美好偕行。 切莫错过新光大中心ArtPark9,让其成为您梦想生活的起点,一同见证这座城市的未来与辉煌!速来体验吧!
-
业主心态问经纪人
新房出售,甲方直售,无其他税费
-
小区配套问经纪人
新光大中心小区立身于北京城市副中心——运河商务区的核心地带,由一幢主塔“北京塔”以及六幢高低参差的高层建筑物构成,与河对岸的千年燃灯佛舍利塔遥相呼应,环球影城度假区以及北京市政府所在之地。 - :11 万平方米的“大融城”沉浸式中心,荟聚着国际高水准的艺术、复合式生活书店、主题生活馆、寰球美食、文创街区等多元业态。 - 写字楼:40 万平方米的国际写字楼,其中 座写字楼拥有“紫气东来”的东向入口,大堂面积达 1000 平方米, 11 米,三面皆可观景。此写字楼高达 190 米,标准层 4.3 米,净高 2.8 米,经由无角窗设计的优化,造就了 360°毫无
-
服务介绍问经纪人
于此处,您将会拥有一座可承载一切幸福与梦想的温馨之家园,开启美妙生活的崭新篇章。
-
税费分析房贷计算
只需缴纳正常的购房契税后再无其它税费。
周边配套
交通综合评分
查看全部超过北京20.4%的小区
-
地铁公交
9.0
-
驾车出行
10.0
本月均价 27303元/m²
环比上月 下跌 2%
同比去年 下跌 20.27%
猜你喜欢
同小区其它房源
户型齐全,主打客厅朝南一居
新光大中心公寓户型主要有43平-82平的客厅朝南的一居 、113平-117平的明厨,独立衣帽间,双卧朝南,主卧朝南的二居 、150平-151平的户型方正,明厨,客厅朝南,双卧朝南的三居 。
*获取完整户型报告,同时会有免费语音讲解服务
-
31535元/㎡
本月挂牌均价
-
2.92%
环比上月
买房加房产交流群,省钱不踩雷
3000+人正在热聊
- 免费咨询
- 专业服务
- 区域解读
- 户型分析


