建设部大院 低楼层 经典两居 万科物业
-
563万
总价
-
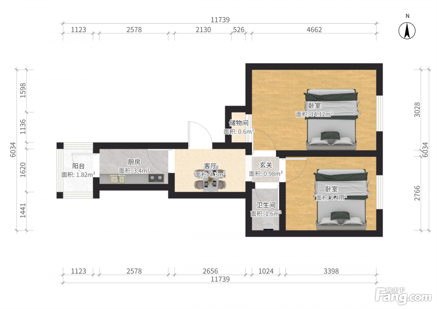
2室1厅1卫
户型
-
49㎡
建筑面积
买房加房产交流群,省钱不踩雷
3000+人正在热聊
-
单价
114898元/平米
- 挂牌价格解析
-
楼层
低层/6层
- 咨询楼层
-
套内
暂无数据
- 咨询套内使用面积
-
楼型
板楼
-
朝向
东西
-
装修
简装修
-
年代
1986
-
发布
2025-02-08
-
地铁
距6号线二里沟站约453米
-
咨询总首付
首付约170.7万
首付税费及佣金情况 -
深度测评
小区建设部大院(海淀-增光路)
-
更多
楼户比、楼层高度、交易历史、抵押信息
房源描述(1)
-
核心卖点问经纪人
相信为您推荐的这套房子您一定会满意,赶快行动吧,先到先得! 房屋年代∶1986年,房屋面积∶49平方米, 1. 小区配备良好物业管理,让你享受宾至如归的服务; 2. 小区人文素质高,是您的居家的品质选择; 3. 小区环境安静舒适,让您拥有高品质的生活环境; 4. 小区绿化高,绿树成荫鸟语花香让您随时呼吸到新鲜空气。
周边配套
交通综合评分
查看全部超过北京62.4%的小区
-
地铁公交
10.0
-
城际交通
4.5
本月均价 104590元/m²
环比上月 下跌 4.28%
同比去年 下跌 10.47%
猜你喜欢
同小区其它房源
户型齐全,主打户型方正二居
建设部大院户型主要有49平-100平的户型方正的二居 、37平-67平的户型方正,明厨,主卧朝南的一居 、62平-127平的户型方正,明厨,双阳台,双卧朝南的三居 。
*获取完整户型报告,同时会有免费语音讲解服务
-
88006元/㎡
本月挂牌均价
-
1.42%
环比上月
买房加房产交流群,省钱不踩雷
3000+人正在热聊
- 免费咨询
- 专业服务
- 区域解读
- 户型分析


