47000
元/月
面议
4室2厅WE HOUSE
-
4室2厅3卫
整租
-
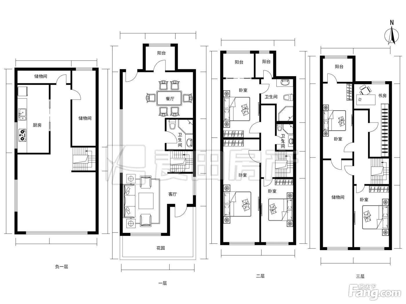
500㎡
面积
-
底层/1层
楼层
-
南
朝向
2025-12-03更新
租房不踩坑
3000+人正在热聊
加入群聊
-
看房
暂无
-
装修
豪华装修
-
入住
2025-09-20 00:00:00
-
咨询经纪人,了解更多房源信息
问一问
郑重提示:请您在签订合同之前,切勿支付任何形式的费用,以免上当受骗。
费用明细
-
面议
付款方式
-
47000
租金(元/月)
-
***
押金
-
***
服务费
- 房租含取暖费吗?
- 房租含物业费吗?
房源描述
-
房源亮点问经纪人
相信为您推荐的这套房子您一定会满意,赶快行动吧,先到先得! 房屋年代∶2004,面积∶500.0平方米,朝向∶ 1. 小区配备高端物业管理,让你享受宾至如归的服务; 2. 小区人文素质高,是您的居家的绝佳选择; 3. 小区居住安静舒适,让您拥有高品质的生活环境; 4. 小区绿化率高,绿树成荫鸟语花香让您随时呼吸到新鲜空气。
-
小区配套问经纪人
近靠西山,守望中关村,拥有较好的自然景观与人文环境,与其它远郊别墅项目相比,本项目即有远郊区别墅项目的自然环境优势,同时也可享受城市生活的便利, 可作为城市中的居所别墅,解决别墅只适合第二居所的不足。交通得益于四环路、免费的五环;西外大街快速路、连通苏州桥与西四环的远大路等。七可达 二环路、8畅行可达中关村、去往香山风景区、颐和园只有数,五棵松地铁直线对接京城腹地各个角落。各大部委咫尺之遥。真正做到由点及线、由线 至面,线线相连、面面俱到。
周边配套
地址:四季青桥西南角(通汇路18号)
- 免费咨询
- 专业服务
- 区域解读
- 户型分析
免责声明:房源信息由网站用户提供,其真实性、合法性由信息提供者负责,最终以政府部门登记备案为准。本网站内容凡涉及面积单位均为建筑面积,本网站不声明或保证内容之正确性和可靠性,租赁该房屋时,请谨慎核查。


