房天下APP

1月北京特价租房

房天下买房小程序

看免中介费房源来这

12500
元/月
面议

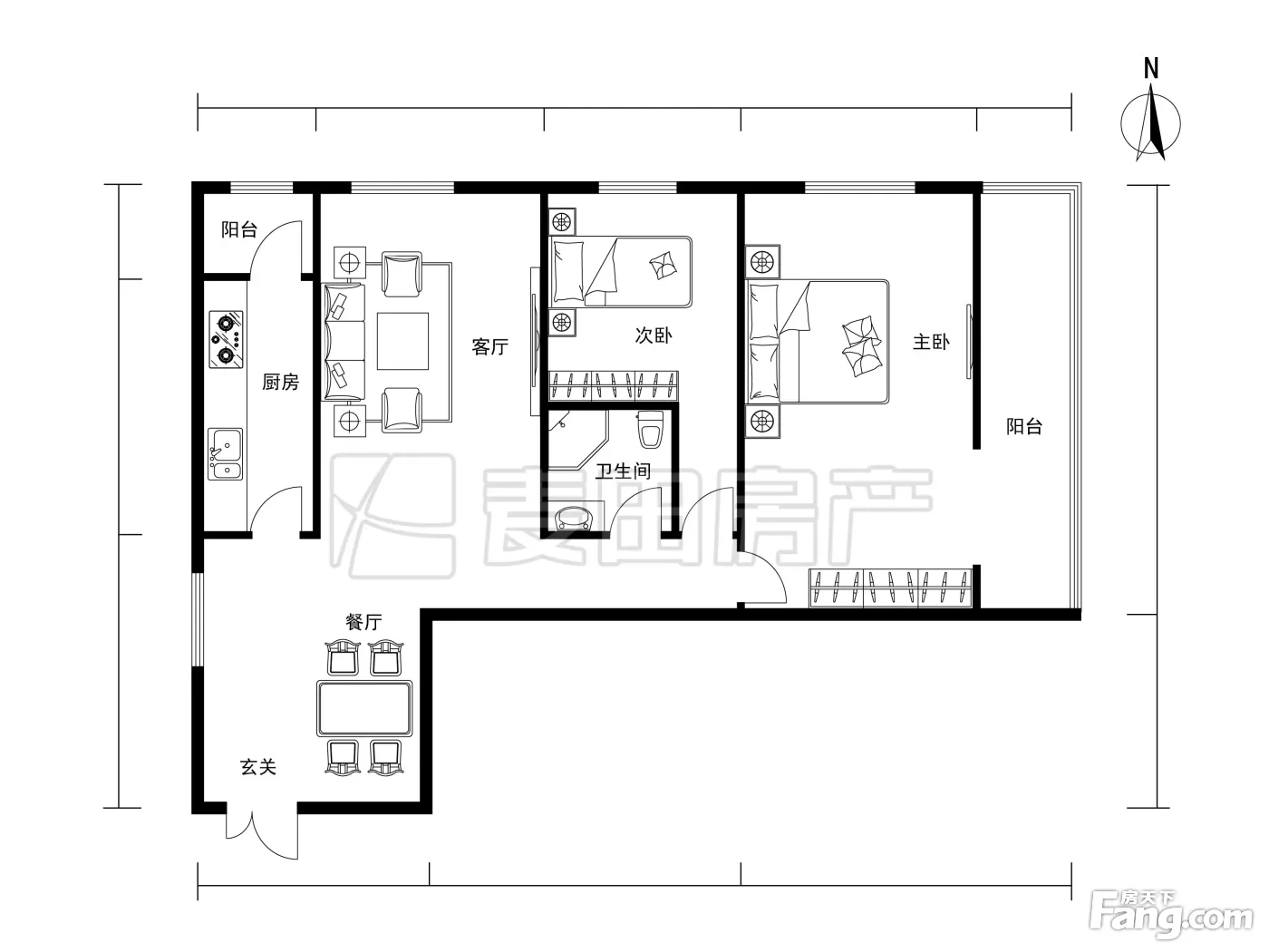
颐源居3室2厅精装修

  • 3室2厅1卫

    整租

  • 117㎡

    面积

  • 高层/27层

    楼层

  • 东北

    朝向

2025-09-01更新

租房不踩坑

3000+人正在热聊

加入群聊
  • 看房

    暂无

  • 装修

    精装修

  • 入住

    2025-05-20 08:00:00

  • 咨询经纪人,了解更多房源信息
    问一问
郑重提示:请您在签订合同之前,切勿支付任何形式的费用,以免上当受骗。

费用明细

  • 面议

    付款方式

  • 12500

    租金(元/月)

  • ***

    押金

  • ***

    服务费

  • 房租含取暖费吗?
  • 房租含物业费吗?

房源描述

  • 缠星星 评分:4.1

    北京麦田房产经纪有限公司
  • 房源亮点问经纪人

    相信为您推荐的这套房子您一定会满意,赶快行动吧,先到先得! 房屋年代∶1999,面积∶117.0平方米,朝向∶东北 1. 小区配备高端物业管理,让你享受宾至如归的服务; 2. 小区人文素质高,是您的居家的绝佳选择; 3. 小区居住安静舒适,让您拥有高品质的生活环境; 4. 小区绿化率高,绿树成荫鸟语花香让您随时呼吸到新鲜空气。

  • 小区配套问经纪人

    颐源居位于海淀区翠微路,属于公主坟商圈,周围设施配套齐全。园区共分为三期14栋楼,7栋塔楼7栋板楼,板塔结合。 交通纵横交织,四通八达,,东临西三环中路,西靠翠微路,北接昆玉河,步行五到玉渊潭公园,南邻长安街延伸线复兴路,周边有20多条公交车线、地铁1号线、10号线穿梭往来。多家重点中学,翠微小学、汇佳幼儿园建在小区附近。 小区内部环境:颐源居项目占地14.3公顷,规划总建筑面积逾40万平方米。小区还有拉膜会所,创北京居住社区先例,游泳、桑拿、健身、娱乐、餐饮一应俱全。社区灯光网球场、篮球场、器械健身区完全

海淀公主坟

建成2001年

建筑类型板楼,塔楼

8.2

小区测评

周边配套

地址:西三环羊坊店颐源居
  • 免费咨询
  • 专业服务
  • 区域解读
  • 户型分析
  • 缠星星 评分 4.1

    北京麦田房产经纪有限公司
免责声明:房源信息由网站用户提供,其真实性、合法性由信息提供者负责,最终以政府部门登记备案为准。本网站内容凡涉及面积单位均为建筑面积,本网站不声明或保证内容之正确性和可靠性,租赁该房屋时,请谨慎核查。