国门智慧城
- 地址
顺义区裕曦路与安平北街交叉路口往东约50米(东亚创展国际东北侧约150米)
购房不踩坑 3000+人正在热聊
- 18921 元/㎡比上月 8.34%
小区参考价
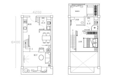
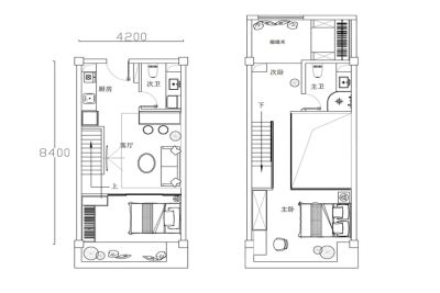
户型齐全,主打南北通透,全明格局二居
国门智慧城户型主要有47平-50平的南北通透,全明格局的二居 、63平-70平的全明格局,干湿分离的三居 。
*获取完整户型报告,同时会有免费语音讲解服务
小区行情周报
01月24日-01月30日小区攻略
攻略
小区信息全方位解读
特点全面解析

小区概况
- 建筑年代
2017
- 物业类型
商住公寓
- 绿化率
30%
- 容积率
1.99
- 建筑面积
325500.0㎡
- 建筑类型
板楼
- 物业费
2.5元/㎡·月
- 物业公司
北京首开鸿城实业有限公司
- 停车位
共1565个机动车位,车位比:1:0.95
- 地下车位
1650个
- 开发商
北京金盛顺鑫置业投资有限公司

详情解读
周边配套
地址:顺义区裕曦路与安平北街交叉路口往东约50米(东亚创展国际东北侧约150米)
交通综合评分
查看全部6.2
“较好”
超过北京73.3%的小区
- 地铁公交8.0
- 驾车出行10.0

交通解读
- 37831元/㎡
本月挂牌均价
- 1.48%
环比上月
推荐楼盘
大家都在问(1)
免责声明*小区中涉及的价格经由房天下大数据统计分析计算得出,价格统计不能覆盖所有房源,并且有滞后,仅供参考。

























