绿城·雲栖桃花源
别名:绿城云栖桃花源
绿城·云栖桃花源合院已全部售罄,山水洋房即将加推,建面约107-127㎡, 报价时间:2022年02月28日,价格有效期:14天
订阅消息将通过短信及推送等形式通知您
楼盘价值分析报告
9.3
楼盘评分
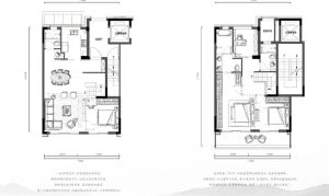
- 项目户型 9.5
- 交通配套 9.2
- 教育配套 10.0
- 生活配套 9.6
交通配套
周边直线3km范围内有2个地铁站(小洋江、东钱湖),轨道交通发达,距离最近的地铁站是小洋江。周边直线1km内有12个公交站,距离最近的东钱湖行政服务中心站仅有116m,周边公共交通极为便捷。
教育配套
直线3km范围内有11个幼儿园。直线3km范围内有5个小学:东钱湖镇中心小学、宁波市鄞州区云龙镇前徐小学、东钱湖镇钱湖人家小学、东钱湖利民学校、鄞州区王笙舲小学。直线3km范围内有2个中学:东钱湖中学、宁波市鄞州区云龙镇中心初级中学。
生活配套
楼盘直线3km范围内有4个一级及以上医院,为医疗需求提供了保障。楼盘周边3km范围内有8个商场,包括嘉悦生活广场等购物中心,商业配套成熟,完全可以满足日常购物需求。楼盘周边生态环境优越,周边3km范围内有62个公园,距离最近的仅997m,非常方便日常休闲使用。
- 总楼栋:
90栋
- 规划户数:
744户
- 占地面积:
187210.00㎡
- 建筑面积:
242519.00㎡
目前发展一般,感觉还有很大空间。70年产权更靠谱!
主力户型有98.00㎡(3室2厅1卫),280.00㎡(6室2厅1卫)的小区房屋质量怎么样?
对此楼盘感兴趣的人还浏览了

明湖之心·星洲
47000元/平方米鄞州-东部新城用户评分9.44分
在售豪华居住区湖景地产品牌地产特色别墅低密居所装修交付大平层改善优选
翠岚轩
190万元/套起鄞州-东钱湖用户评分8.63分
在售不限购地铁沿线花园洋房景观居所改善优选装修交付低密居所
宜和东方
33745元/平方米鄞州-东钱湖用户评分8.46分
在售品牌地产地铁沿线低密居所豪华居住区花园洋房改善优选
交投绿城·望山澄庐
33531元/平方米奉化用户评分8.75分
在售低密居所
江湾四季院
15800元/平方米奉化用户评分8.74分
在售低密居所特色别墅配套商品房江景地产洋房
V-Land甬江天地
36400元/平方米鄞州用户评分9.09分
在售花园洋房江景地产景观居所改善优选装修交付低密居所地铁沿线
沁庐
28000元/平方米鄞州-东钱湖用户评分9.19分
售完品牌地产低密居所特色别墅湖景地产
恒厚甬山阳光府
19758.3元/平方米奉化-方桥用户评分8.1分
在售低总价低密居所特色别墅江景地产改善优选
德信山语云庄
25000元/平方米北仑用户评分9.05分
售完品牌地产低密居所豪华居住区特色别墅花园洋房改善优选
光大·晏泽郡
28722元/平方米鄞州-东钱湖用户评分8.43分
在售低密居所改善优选
打开房天下APP,查看更多内容
立即打开免责声明:本站楼盘信息旨在为用户提供更多信息的无偿服务,信息以政府部门登记备案为准,请谨慎核查。





























