华发四季精装修-南北通透双阳台-送全屋家电家丝
-
106万
总价
-
4室2厅2卫
户型
-
139.63㎡
建筑面积
-
单价
7591元/平米
- 挂牌价格解析
-
楼层
高层/32层
- 咨询楼层
-
套内
138.63㎡
- 咨询套内使用面积
-
楼型
板楼
-
朝向
东
-
装修
精装修
-
年代
2019
-
发布
2025-06-27
-
地铁
暂无数据
-
深度测评
小区华发四季(沙溪镇-庞头)
-
更多
楼户比、楼层高度、交易历史、抵押信息
房源描述(1)
-
核心卖点问经纪人
华发四季住宅社区,地处沙溪康乐路 1、铂金地段:优越的地理环境,无法逾越的教育资源,是你安居置业之地。 2、房源信息:罕见户型,正南朝向,能看到靓景。光线非常充足。 3、房源稀少:此房是目前在卖仅存的,新放盘,业主有心出手, 4、性价比高:此房独特的户型,自.住1步到位! 5、适合人群:注重生活高尚品质,享受生活,作风低调的成功人士;
-
业主心态问经纪人
房东置换,诚心出售,可以再谈,欢迎看房,随时恭候。
-
小区配套问经纪人
小区地理位置佳,绿化环境优越整洁,居民素质高,物业管理完善,适宜居住
-
服务介绍问经纪人
本人做房产多年,一直本着专业的房产知识,为您服务,我会在短的时间内帮您买好满意的房子,不让您错失任何好房子,更不让您每天为买房的事烦心,欢迎随时拨打我电话。
-
税费分析房贷计算
关于本房的税费信息情况,请电话联系我,我将详细的为您讲解!
-
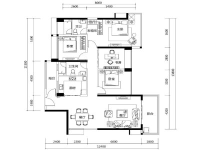
户型解读问经纪人
房屋拥有相对宽松的尺寸,布局通透,动静分离,设计豪华
周边配套
交通综合评分
查看全部超过中山74.4%的小区
-
地铁公交
10.0
-
驾车出行
10.0
本月均价 8801元/m²
环比上月 下跌 0.66%
同比去年 下跌 8.69%
猜你喜欢
同小区其它房源
户型齐全,主打主卧带卫,厨卫不对门,户型方正,双阳台三居
华发四季户型主要有92平-139平的主卧带卫,厨卫不对门,户型方正,双阳台的三居 、74平-168平的开放厨房,大面宽阳台的二居 、114平-169平的户型方正,动静分离,采光充足,主卧带卫,双阳台的四居 。
*获取完整户型报告,同时会有免费语音讲解服务
- 免费咨询
- 专业服务
- 区域解读
- 户型分析

