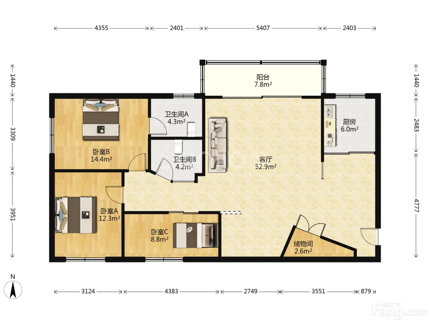
龙港 金融大厦 3室2厅 153.00㎡ 108万
-
108万元
总价
-
3室2厅2卫
户型
-
153㎡
建筑面积
-
单价
7059元/平米
- 挂牌价格解析
-
楼层
中层/22层
- 咨询楼层
-
套内
暂无数据
- 咨询套内使用面积
-
朝向
东南
-
发布
2026-02-01
-
深度测评
小区金融大厦(龙港-龙港)
-
更多
楼户比、楼层高度、交易历史、抵押信息
业主自评
-
一叶一追寻738
加入房天下1131天
接电时间:8:00-21:00
周边配套
地址:苍南县西一路金融大厦
交通综合评分
查看全部2.0
“一般”
超过温州63.2%的小区
-
地铁公交
5.0
本月均价 6546元/m²
环比上月 上涨 0.01%
同比去年 下跌 8.35%
猜你喜欢
同小区其它房源
-
7085元/㎡
本月挂牌均价
-
0.54%
环比上月
联系业主
免责声明:房源信息由网站用户提供,其真实性、合法性由信息提供者负责,最终以政府部门登记备案为准。本网站不声明或保证内容之正确性和可靠性,购买该房屋时,请谨慎核查。入学情况仅凭历史经验总结,在此不承诺升学事宜。请您在签订合同之前,切勿支付任何形式的费用,以免上当受骗。

