上广文阳光100城市广场精装复式拎包入住租金高已出税降价急售
-
49.8万
总价
-
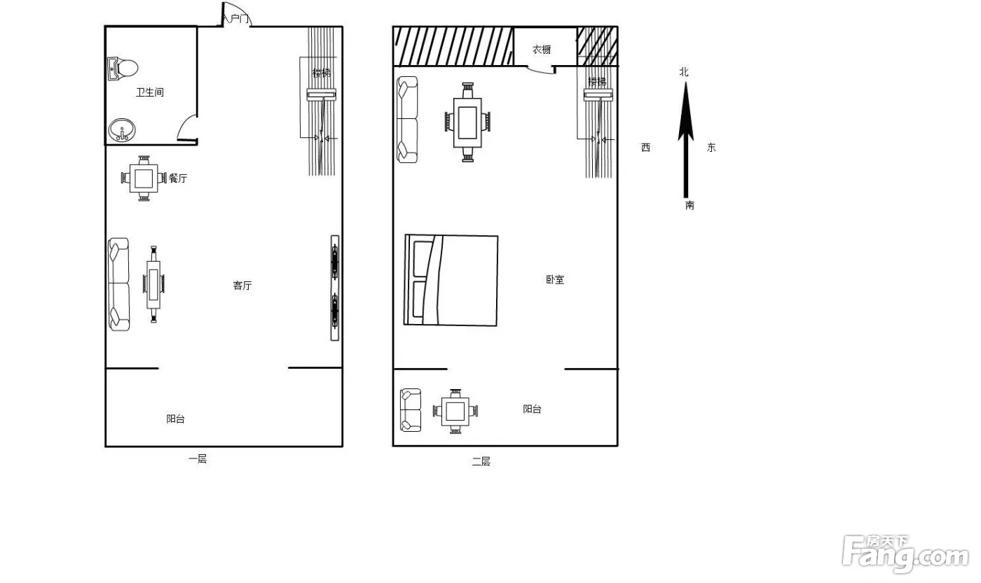
1室1厅1卫
户型
-
60㎡
建筑面积
-
单价
8300元/平米
- 挂牌价格解析
-
楼层
高层/19层
- 咨询楼层
-
套内
暂无数据
- 咨询套内使用面积
-
楼型
板楼
-
朝向
南
-
装修
精装修
-
年代
2014
-
发布
2025-12-30
-
深度测评
小区阳光100城市广场(奎文-万达广场)
-
更多
楼户比、楼层高度、交易历史、抵押信息
房源描述(1)
-
核心卖点问经纪人
【房源简介】2014年建成,空间利用高效的一居室,高层无遮挡,视野开阔,朝向良好,阳光充足。步梯房,70年产权,产权合理,实拍视频和全景展现真实情况。小区环境优雅,绿化丰富,提供舒适居住环境。房屋为精装修,满二不,价格51.8万,适合家庭居住。
-
业主心态问经纪人
房主对我充满信任,与我关系融洽,我将竭力协助买卖双方进行友好的沟通,促进交易达成。房主具有一定的议价空间,急售心态明显,随时欢迎看房,期待快交!
-
小区配套问经纪人
小区地理位置佳,绿化率高,环境整洁,居民素质高。 .
-
服务介绍问经纪人
公司有大量好房源,欢迎进入我的店铺查看,随时电话咨询,相信我的专业,为您置业安家保驾护航。
-
税费分析房贷计算
关于本房税费分析详情,请电话联系我,我将提供详细的税费情况。 .
-
户型解读问经纪人
本房源采光好,交通便利户型方正是园区里的好户型。 .
周边配套
交通综合评分
查看全部超过潍坊12.7%的小区
-
地铁公交
10.0
-
城际交通
4.0
本月均价 7012元/m²
环比上月 上涨 3.16%
同比去年 下跌 15.81%
猜你喜欢
同小区其它房源
-
6336元/㎡
本月挂牌均价
-
持平
环比上月
- 免费咨询
- 专业服务
- 区域解读
- 户型分析

