富亭街学校,四室户型,全天采光!送地下室中央空调车位券
-
78万
总价
-
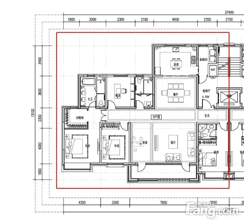
4室2厅2卫
户型
-
140.88㎡
建筑面积
-
单价
5537元/平米
- 挂牌价格解析
-
楼层
中层/18层
- 咨询楼层
-
套内
暂无数据
- 咨询套内使用面积
-
楼型
板楼
-
朝向
南北
-
装修
毛坯
-
年代
2025
-
发布
2025-12-29
-
深度测评
小区中房红艺墅(寒亭-杨家埠)
-
更多
楼户比、楼层高度、交易历史、抵押信息
房源描述(1)
-
核心卖点问经纪人
《亮点1》全明 通透 户型方正 浪费空间少 《亮点2》视野好 采光棒 让你有视觉感触 《亮点3》小区绿化率高 让你感受花园一样的家 《亮点4》小区附近配套齐全 公交 超市 银行 医院
-
业主心态问经纪人
业主因工作调动诚心卖房,房屋没有任何产权纠纷,无抵押,看好价格可议。
-
小区配套问经纪人
位置:小区地理位置佳,绿化率高,居民素质高 配套:有健身器材,小型篮球场,可供小区居民使用 车位:停车位充足,建有地上停车场和地下车库 保安:小区内24保安巡逻
-
服务介绍问经纪人
本人从事房地产多年,公司有大量好房源,欢迎进入我的店铺查看,欢迎随时电话咨询,相信我的专业,为您置业安家保驾护航。
周边配套
地址:富亭街与志远北路以西,富亭街小学以北
交通综合评分
查看全部6.7
“较好”
超过潍坊0.0%的小区
-
地铁公交
10.0
-
驾车出行
9.0
本月均价 7069元/m²
环比上月 上涨 8.64%
同比去年 持平 持平
猜你喜欢
同小区其它房源
-
6532元/㎡
本月挂牌均价
-
持平
环比上月
- 免费咨询
- 专业服务
- 区域解读
- 户型分析
免责声明:房源信息由网站用户提供,其真实性、合法性由信息提供者负责,最终以政府部门登记备案为准。本网站不声明或保证内容之正确性和可靠性,购买该房屋时,请谨慎核查。入学情况仅凭历史经验总结,在此不承诺升学事宜。请您在签订合同之前,切勿支付任何形式的费用,以免上当受骗。


