中房红艺墅 叠加别墅 1楼2楼带院 带负一负二
-
260万
总价
-
4室2厅
户型
-
201㎡
建筑面积
-
单价
12936元/平米
- 挂牌价格解析
-
楼层
4层
- 咨询楼层
-
套内
暂无数据
- 咨询套内使用面积
-
楼型
板楼
-
朝向
南北
-
装修
毛坯
-
供暖
暂无数据
-
发布
2025-05-28
-
深度测评
小区中房红艺墅(寒亭-金三角)
-
更多
楼户比、楼层高度、交易历史、抵押信息
房源描述(1)
-
核心卖点问经纪人
相信为您推荐的这套房子您一定会满意,赶快行动吧,先到先得! 房屋年代∶2024,面积∶201.83平方米,朝向∶南北 1. 小区配备高端物业管理,让你享受宾至如归的服务; 2. 小区人文素质高,是您的居家的绝佳选择; 3. 小区居住安静舒适,让您拥有高品质的生活环境; 4. 小区绿化率高,绿树成荫鸟语花香让您随时呼吸到新鲜空气。
-
业主心态问经纪人
业主诚意出售,对自己的房子很爱惜也很不舍,所以希望找到诚心诚意的客户,想看房子可以给我打电话!
-
小区配套问经纪人
位置:小区地理位置,绿化,居民素质高 配套:有健身器材,小型篮球场,可供小区居民使用 车位:停车位充足,建有地上停车场和地下车库 保安:小区内24保安巡逻
-
服务介绍问经纪人
足不出户,带您了解周边楼市信息! 本人从事房产行业多年,了解市场房源具体信息,深知买房的艰辛和不易,会为您匹配合适的房源,为您买上满意的房子 欢迎各位随时咨询,一定会尽心尽力,全心全意为您服务。
-
税费分析房贷计算
关于税费方面会严格按照国家标准,及相关政策规定收取,保证每一位客户的合法利益不受侵犯,如有疑问可随时咨询! 新房不收中介费!!! 新房不收中介费!!! 新房不收中介费!!!
-
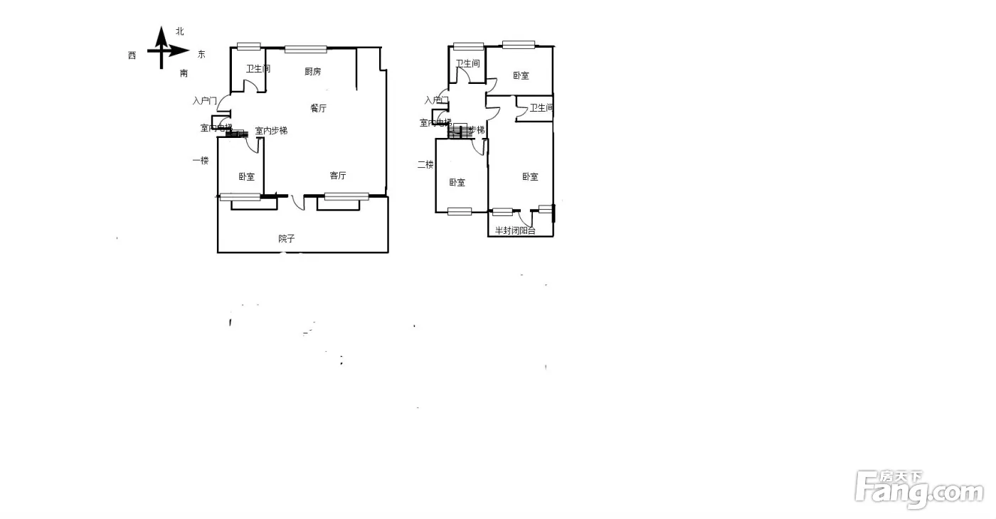
户型解读问经纪人
小区总体户型都是比较不错的!光线非常好,南北通透,卧室朝阳,全明户型,抽空可以过来实地看看。
周边配套
地址:富亭街与志远北路以西,富亭街小学以北
交通综合评分
查看全部6.7
“较好”
超过潍坊0.0%的小区
-
地铁公交
10.0
-
驾车出行
9.0
猜你喜欢
同小区其它房源
-
5283元/㎡
本月挂牌均价
-
持平
环比上月
- 免费咨询
- 专业服务
- 区域解读
- 户型分析
免责声明:房源信息由网站用户提供,其真实性、合法性由信息提供者负责,最终以政府部门登记备案为准。本网站不声明或保证内容之正确性和可靠性,购买该房屋时,请谨慎核查。入学情况仅凭历史经验总结,在此不承诺升学事宜。请您在签订合同之前,切勿支付任何形式的费用,以免上当受骗。


