市府广场近凯旋国际花园顶层复式精装修房主急售看房方便
-
150万
总价
-
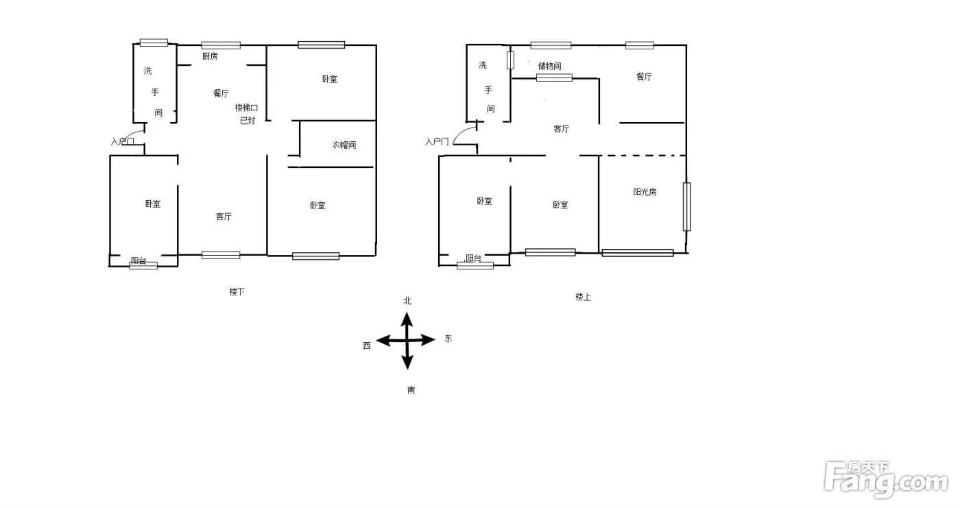
5室4厅3卫
户型
-
140㎡
建筑面积
-
单价
10714元/平米
- 挂牌价格解析
-
楼层
顶层/18层
- 咨询楼层
-
套内
暂无数据
- 咨询套内使用面积
-
楼型
板楼
-
朝向
南北
-
装修
豪华装修
-
年代
2012
-
发布
2025-06-05
-
深度测评
小区凯旋国际花园(高新-市府东南区域)
-
更多
楼户比、楼层高度、交易历史、抵押信息
房源描述(1)
-
核心卖点问经纪人
相信为您推荐的这套房子您一定会满意,赶快行动吧,先到先得! 房屋年代∶2012年,房屋面积∶140平方米,朝向∶南北通透 1. 小区配备良好物业管理,让你享受宾至如归的服务; 2. 小区人文素质高,是您的居家的品质选择; 3. 小区环境安静舒适,让您拥有高品质的生活环境; 4. 小区绿化高,绿树成荫鸟语花香让您随时呼吸到新鲜空气。
周边配套
地址:东方路与梨园街路口南路东
交通综合评分
查看全部4.0
“一般”
超过潍坊56.8%的小区
-
地铁公交
10.0
本月均价 6938元/m²
环比上月 下跌 1.41%
同比去年 下跌 8.86%
猜你喜欢
同小区其它房源
-
8265元/㎡
本月挂牌均价
-
持平
环比上月
- 免费咨询
- 专业服务
- 区域解读
- 户型分析
免责声明:房源信息由网站用户提供,其真实性、合法性由信息提供者负责,最终以政府部门登记备案为准。本网站不声明或保证内容之正确性和可靠性,购买该房屋时,请谨慎核查。入学情况仅凭历史经验总结,在此不承诺升学事宜。请您在签订合同之前,切勿支付任何形式的费用,以免上当受骗。


