圣菲漫步别墅,一二楼叠拼别墅,带院子,带车位,带连廊
-
228万元
总价
-
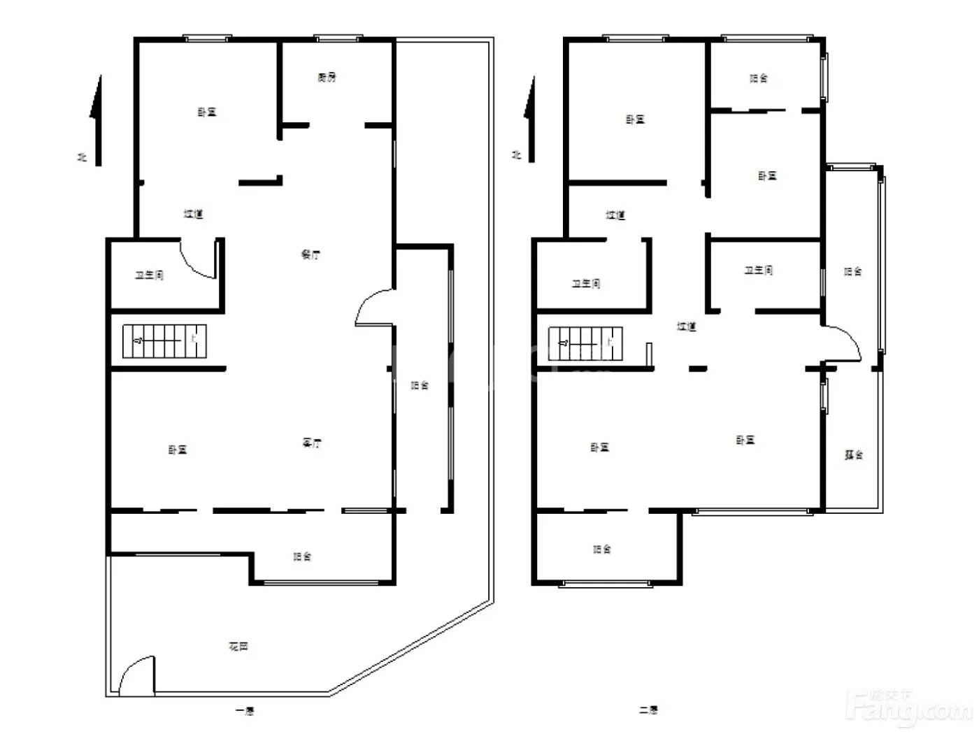
6室3厅3卫
户型
-
280.12㎡
建筑面积
-
单价
8139元/平米
- 挂牌价格解析
-
楼层
4层
- 咨询楼层
-
套内
暂无数据
- 咨询套内使用面积
-
朝向
东南
-
发布
2025-07-22
-
深度测评
小区圣菲漫步别墅
-
更多
楼户比、楼层高度、交易历史、抵押信息
业主自评
-
秋月春风697
加入房天下195天
接电时间:09:00-22:00
圣菲漫步别墅,280.12平方的超大空间,6室3厅3卫,一步一景,尽显奢华。一二楼真叠拼总四层。带连廊,带院子,带车位。 因2016开始限墅令,此类房已禁止审批,已成少量资源。 赠送多达三块露台,毛坯交付,您可以自由设计,打造梦想家园。 别墅环境优美,生活便捷,生活品质一步到位。门口就有佳乐家,多达6家超市,汉堡小吃等,生活便捷,圣菲漫步别墅,性价比高。
圣菲漫步别墅,280.12平方的超大空间,6室3厅3卫,一步一景,尽显奢华。一二楼真叠拼总四层。带连廊,带院子,带车位。 因2016开始限墅令,此类房已禁止审批,已成少量资源。 赠送多达三块露台,毛坯交付,您可以自由设计,打造梦想家园。 别墅环境优美,生活便捷,生活品质一步到位。门口就有佳乐家,多达6家超市,汉堡小吃等,生活便捷,圣菲漫步别墅,性价比高。
周边配套
地址:北宫街与长松路交叉口西666米路北
联系业主
免责声明:房源信息由网站用户提供,其真实性、合法性由信息提供者负责,最终以政府部门登记备案为准。本网站不声明或保证内容之正确性和可靠性,购买该房屋时,请谨慎核查。入学情况仅凭历史经验总结,在此不承诺升学事宜。请您在签订合同之前,切勿支付任何形式的费用,以免上当受骗。

