东边户 户型方正 带两个地下车位 精装修
-
1180万
总价
-
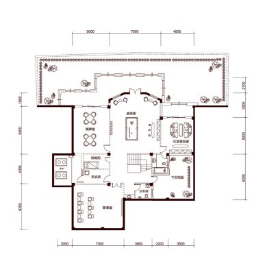
6室2厅
户型
-
378㎡
建筑面积
买房加房产交流群,省钱不踩雷
3000+人正在热聊
加入群聊
-
单价
31217元/平米
- 挂牌价格解析
-
楼层
3层
- 咨询楼层
-
套内
暂无数据
- 咨询套内使用面积
-
楼型
板楼
-
朝向
南北
-
装修
其他
-
供暖
集中供暖
-
发布
2024-02-24
-
深度测评
小区中骏南湖香郡(路南-南湖)
-
更多
楼户比、楼层高度、交易历史、抵押信息
周边配套
地址:南湖生态区学院路和南新道交汇处南行2000米
交通综合评分
查看全部5.3
“一般”
超过唐山1.6%的小区
-
地铁公交
10.0
-
城际交通
4.5
猜你喜欢
同小区其它房源
户型齐全,主打露台,屋顶花园,南北通透五居
中骏南湖香郡户型主要有364平-439平的露台,屋顶花园,南北通透的五居 、443平-714平的露台,南北通透,观景落地窗,带衣帽间的其他居 、356平-442平的入户花园,露台,南北通透,主卧带卫,带衣帽间的四居 。
*获取完整户型报告,同时会有免费语音讲解服务
-
11636元/㎡
本月挂牌均价
-
0.11%
环比上月
买房加房产交流群,省钱不踩雷
3000+人正在热聊
加入群聊
免责声明:房源信息由网站用户提供,其真实性、合法性由信息提供者负责,最终以政府部门登记备案为准。本网站不声明或保证内容之正确性和可靠性,购买该房屋时,请谨慎核查。入学情况仅凭历史经验总结,在此不承诺升学事宜。请您在签订合同之前,切勿支付任何形式的费用,以免上当受骗。



