春江里 大两室 私产 采光好 视野开阔 诚意出售
-
52万
总价
-
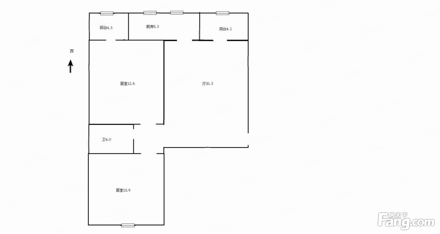
2室1厅
户型
-
79.26㎡
建筑面积
买房加房产交流群,省钱不踩雷
3000+人正在热聊
-
单价
6561元/平米
- 挂牌价格解析
-
楼层
高楼层/6层
- 咨询楼层
-
套内
暂无数据
- 咨询套内使用面积
-
楼型
板塔结合
-
朝向
东西
-
装修
简装
-
供暖
集中供暖
-
发布
2025-09-24
-
地铁
暂无数据
-
咨询总首付
首付约13.9万
首付税费及佣金情况 -
深度测评
小区春江里(东丽-大毕庄)
-
更多
楼户比、楼层高度、交易历史、抵押信息
房源描述(1)
-
核心卖点问经纪人
一、房源优势正规户型,日照充足,空气流畅 二、房屋介绍 格局合理,利用空间大,是 的好户型 三、社区配套 1、环境优雅,低密度社区 2、小区绿化高 四、周边配套 地理位置得天独厚,出行方便! 五、推荐理由 让您体验惬意的生活,充分享受生活的美!
-
业主心态问经纪人
业主很信任我,我能了解业主卖房新的动态。目前政策已经基本稳定,是入手的好时候。请不要错过性价比高的好房。
-
小区配套问经纪人
位置:小区地理位置佳,绿化率高,居民素质高 配套:有健身器材,小型篮球场,可供小区居民使用 车位:停车位充足,建有地上停车场和地下车库 保安:小区内24保安巡逻
-
服务介绍问经纪人
本人从事房地产多年,公司有大量好房源,欢迎进入我的店铺查看,欢迎随时电话咨询,相信我的专业,为您置业安家保驾护航。
周边配套
交通综合评分
查看全部超过天津91.1%的小区
-
地铁公交
10.0
-
驾车出行
10.0
-
城际交通
4.0
本月均价 12636元/m²
环比上月 上涨 1.87%
同比去年 上涨 8.31%
猜你喜欢
同小区其它房源
户型齐全,主打户型方正,主卧朝南二居
春江里户型主要有50平-107平的户型方正,主卧朝南的二居 、110平-119平的户型方正,客厅朝南的三居 。
*获取完整户型报告,同时会有免费语音讲解服务
买房加房产交流群,省钱不踩雷
3000+人正在热聊
- 免费咨询
- 专业服务
- 区域解读
- 户型分析


