(新房无佣)鹏飞新房 中营+南开中学 兼顾居住 手选
-
390万
总价
-
3室2厅2卫
户型
-
98㎡
建筑面积
买房加房产交流群,省钱不踩雷
3000+人正在热聊
-
单价
39796元/平米
- 挂牌价格解析
-
楼层
中层/25层
- 咨询楼层
-
套内
暂无数据
- 咨询套内使用面积
-
楼型
板楼
-
朝向
南北
-
装修
简装修
-
年代
2022
-
发布
2024-12-04
-
地铁
距2号线咸阳路站约742米
-
咨询总首付
首付约100.8万
首付税费及佣金情况 -
深度测评
小区鹏飞·南开学苑(南开-向阳路)
-
更多
楼户比、楼层高度、交易历史、抵押信息
房源描述(1)
-
核心卖点问经纪人
主营天津各区新房项目,现阶段新房以社区规划好,园林景观棒,落地窗、外跨阳台、架空层、酒店式入户大堂,户型方正价位新低等为主要销售亮点,深受民众喜爱,本人服务区域涵盖天津全市,地方,地铁沿线,低总价,刚需改善及豪宅全部均有涉及。
-
业主心态问经纪人
本人所营楼盘皆为新房,新房项目一房一价,根据楼层,楼位,户型,面积,装修等因素的不同直接影响单套房源价格,但是购置新房皆为五证齐全合法合规,简单直接。
-
小区配套问经纪人
环外新房以洋房、小高层等低密社区为主,周边地铁远近不一,小区周边地铁沿线,各大型商场餐饮均有坐落,三甲医院及应有尽有,周边城市界面,商业体系,交通便利,好坏直接决定项目价位,市内六区楼盘配套距离都很主观,距离近,交通方便,主要以小高及高层产品为主。
-
服务介绍问经纪人
本人从事房地产多年,公司有大量好房源,欢迎进入我的店铺查看,欢迎随时电话咨询,相信我的专业,为您置业安家保驾护航。
-
税费分析房贷计算
关于本房的税费信息情况,请电话联系我,我将详细的为您讲解!
周边配套
本月均价 38917元/m²
环比上月 下跌 0.11%
同比去年 下跌 3.93%
猜你喜欢
同小区其它房源
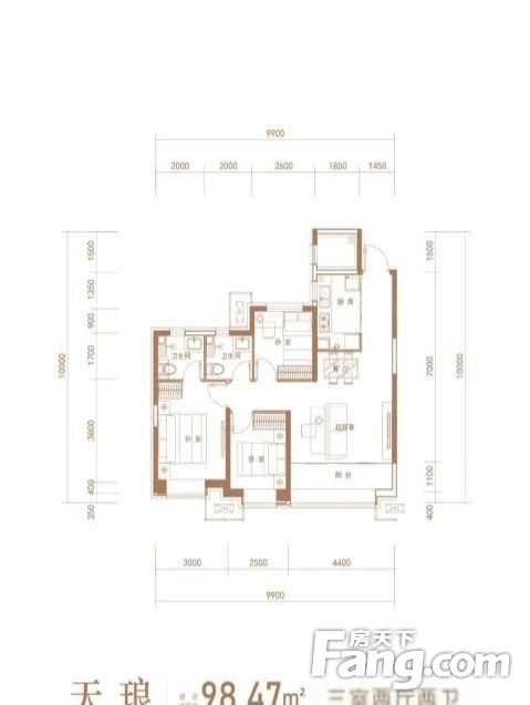
户型齐全,主打南北通透,全明格局,户型方正三居
鹏飞·南开学苑户型主要有98平-126平的南北通透,全明格局,户型方正的三居 、78平-85平的南北通透,全明格局,户型方正的二居 。
*获取完整户型报告,同时会有免费语音讲解服务
-
21593元/㎡
本月挂牌均价
-
1.4%
环比上月
买房加房产交流群,省钱不踩雷
3000+人正在热聊
- 免费咨询
- 专业服务
- 区域解读
- 户型分析

