龙外小户型,业主诚心出售
-
265万
总价
-
1室1厅1卫
户型
-
44.85㎡
建筑面积
买房加房产交流群,省钱不踩雷
3000+人正在热聊
-
单价
59086元/平米
- 挂牌价格解析
-
楼层
低楼层/27层
- 咨询楼层
-
套内
30.6㎡
- 咨询套内使用面积
-
朝向
北
-
装修
精装修
-
年代
2010
-
发布
1900-01-01
-
地铁
距16号线龙城公园站约411米
-
咨询总首付
首付约68.3万
首付税费及佣金情况 -
深度测评
小区阳光天健城(龙岗-龙岗中心城)
-
更多
楼户比、楼层高度、交易历史、抵押信息
房源描述(2)
-
核心卖点问经纪人
优越位置:位于广东省深圳龙岗区核心片区,地理位置优越,靠近公共交通和主要商业区。 优质教育:紧邻龙外本部校区,适合家庭居住。 完整配套:小区配备丰富的基础设施,包括电梯和充足的车位等。 精美装修:房源为普装,干净整洁,便于新一任业主随时入住。
-
业主心态问经纪人
房东置换,诚心出售,可以再谈,欢迎看房,随时恭候。
-
小区配套问经纪人
小区地理位置佳,绿化环境优越整洁,居民素质高,物业管理完善,适宜居住
-
服务介绍问经纪人
本人做房产多年,一直本着专业的房产知识,为您服务,我会在短的时间内帮您买好满意的房子,不让您错失任何好房子,更不让您每天为买房的事烦心,欢迎随时拨打我电话。
-
税费分析房贷计算
关于本房的税费信息情况,请电话联系我,我将详细的为您讲解!
-
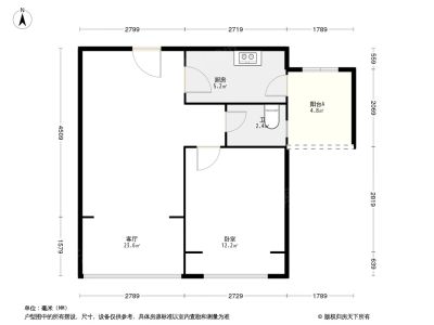
户型解读问经纪人
房屋拥有相对宽松的尺寸,布局通透,动静分离,设计豪华
-
核心卖点问经纪人
优越位置:位于广东省深圳龙岗区核心片区,地理位置优越,靠近公共交通和主要商业区。 优质教育:紧邻龙外本部校区,适合家庭居住。 完整配套:小区配备丰富的基础设施,包括电梯和充足的车位等。 精美装修:房源为普装,干净整洁,便于新一任业主随时入住。
-
业主心态问经纪人
房东置换,诚心出售,可以再谈,欢迎看房,随时恭候。
-
小区配套问经纪人
小区地理位置佳,绿化环境优越整洁,居民素质高,物业管理完善,适宜居住
-
服务介绍问经纪人
本人做房产多年,一直本着专业的房产知识,为您服务,我会在短的时间内帮您买好满意的房子,不让您错失任何好房子,更不让您每天为买房的事烦心,欢迎随时拨打我电话。
-
税费分析房贷计算
关于本房的税费信息情况,请电话联系我,我将详细的为您讲解!
-
户型解读问经纪人
房屋拥有相对宽松的尺寸,布局通透,动静分离,设计豪华
周边配套
交通综合评分
查看全部超过深圳13.0%的小区
-
地铁公交
9.0
-
驾车出行
10.0
本月均价 64528元/m²
环比上月 下跌 0.49%
同比去年 下跌 1.8%
猜你喜欢
同小区其它房源
户型齐全,主打客厅朝南,主卧朝南一居
阳光天健城户型主要有35平-71平的客厅朝南,主卧朝南的一居 、49平-177平的明卫,明厨,客厅朝南,双阳台的四居 、44平-143平的户型方正,明厨,双卧朝南的三居 。
*获取完整户型报告,同时会有免费语音讲解服务
-
34580元/㎡
本月挂牌均价
-
0.71%
环比上月
买房加房产交流群,省钱不踩雷
3000+人正在热聊
- 免费咨询
- 专业服务
- 区域解读
- 户型分析

