鑫丰苑房屋结构好近地铁近公园近学校方便看
-
546万
总价
-
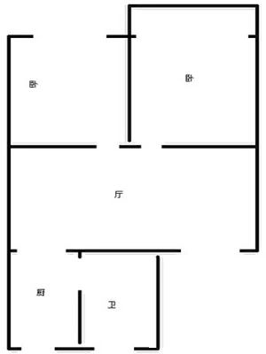
2室1厅1卫
户型
-
78.44㎡
建筑面积
买房加房产交流群,省钱不踩雷
3000+人正在热聊
加入群聊
-
单价
69608元/平米
- 挂牌价格解析
-
楼层
高楼层/6层
- 咨询楼层
-
套内
暂无数据
- 咨询套内使用面积
-
楼型
板楼
-
朝向
南
-
装修
简装修
-
年代
2003
-
发布
2026-04-10
-
地铁
距2号线世纪公园站约338米
-
咨询总首付
首付约192.8万
首付税费及佣金情况 -
深度测评
小区花木鑫丰苑(浦东-世纪公园)
-
更多
楼户比、楼层高度、交易历史、抵押信息
周边配套
地址:樱花路469弄
交通综合评分
查看全部4.0
“一般”
超过上海73.3%的小区
-
地铁公交
10.0
本月均价 75417元/m²
环比上月 持平
同比去年 下跌 15.11%
猜你喜欢
同小区其它房源
户型齐全,主打户型方正,明厨,明卫,客厅朝南二居
花木鑫丰苑户型主要有78平-79平的户型方正,明厨,明卫,客厅朝南的二居 、79平-98平的户型方正,明卫,明厨,客厅朝南,主卧朝南的三居 、54平-54平的户型方正,明厨,明卫,客厅朝南的一居 。
*获取完整户型报告,同时会有免费语音讲解服务
-
82577元/㎡
本月挂牌均价
-
持平
环比上月
买房加房产交流群,省钱不踩雷
3000+人正在热聊
加入群聊
免责声明:房源信息由网站用户提供,其真实性、合法性由信息提供者负责,最终以政府部门登记备案为准。本网站不声明或保证内容之正确性和可靠性,购买该房屋时,请谨慎核查。入学情况仅凭历史经验总结,在此不承诺升学事宜。请您在签订合同之前,切勿支付任何形式的费用,以免上当受骗。



