宁波小区 2房全明户型,南京东路地铁口,北小格致初
-
600万
总价
-
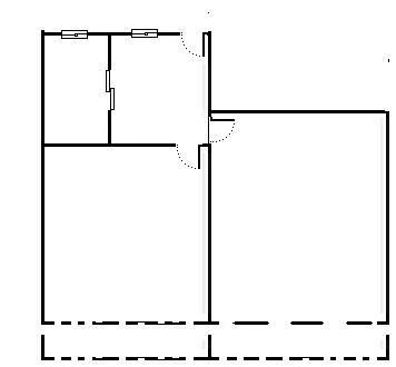
2室1卫
户型
-
46.84㎡
建筑面积
买房加房产交流群,省钱不踩雷
3000+人正在热聊
-
单价
128096元/平米
- 挂牌价格解析
-
楼层
低层/6层
- 咨询楼层
-
套内
43㎡
- 咨询套内使用面积
-
楼型
砖楼
-
朝向
南北
-
装修
精装修
-
年代
1986
-
发布
2026-02-25
-
地铁
距2号线南京东路站约303米
-
咨询总首付
首付约246.8万
首付税费及佣金情况 -
深度测评
小区宁波小区(黄浦-南京东路)
-
更多
楼户比、楼层高度、交易历史、抵押信息
-
核验码
202204876181
房源描述(1)
-
核心卖点问经纪人
户型优势 户型:2室1厅1厨,建造方正全明户型,无浪费面积,业主诚意出售,是您居家和的 小区亮点 小区美丽家园刚改造好,楼道外立面干净整洁、配套成熟、:周围商店上海市黄浦区北京东路,格致初级, 附近地铁:10号线南京东路,2号线南京东路,配套一应惧全,交通便利,给您生活带来无尽的便利和享受
-
业主心态问经纪人
业主诚心出售此房,欢迎您看房,如需了解其他信息请与我联系。
-
小区配套问经纪人
小区地理位置好,配套设施齐全,交通便利,居民素质高。
-
服务介绍问经纪人
本人从事房地产经纪行业多年,具有丰富的从业经验。欢迎实地看房。
-
税费分析房贷计算
产权干净,税费清晰,欢迎来电咨询该房屋详情,静候您的来电!
-
户型解读问经纪人
房屋户型方正,景观布局合理,设计实用,空间舒适,格局优越,采光通风良好
周边配套
交通综合评分
查看全部超过上海46.3%的小区
-
地铁公交
10.0
-
城际交通
9.0
本月均价 138127元/m²
环比上月 持平
同比去年 下跌 9.33%
猜你喜欢
同小区其它房源
-
94330元/㎡
本月挂牌均价
-
持平
环比上月
买房加房产交流群,省钱不踩雷
3000+人正在热聊
- 免费咨询
- 专业服务
- 区域解读
- 户型分析

