上海图书馆旁:中汇花园新上3房带3个阳台,南北通透,看房方便
-
2100万
总价
-
3室2厅2卫
户型
-
162.14㎡
建筑面积
买房加房产交流群,省钱不踩雷
3000+人正在热聊
-
单价
129518元/平米
- 挂牌价格解析
-
楼层
中层/8层
- 咨询楼层
-
套内
144.16㎡
- 咨询套内使用面积
-
楼型
板楼
-
朝向
南北
-
装修
精装修
-
年代
1995
-
发布
2026-02-07
-
地铁
距10号线(新江湾城-虹桥火车站)上海图书馆站约364米
-
咨询总首付
首付约628.9万
首付税费及佣金情况 -
深度测评
小区中汇花园(徐汇-衡山路)
-
更多
楼户比、楼层高度、交易历史、抵押信息
-
核验码
202203326820
房源描述(1)
-
核心卖点问经纪人
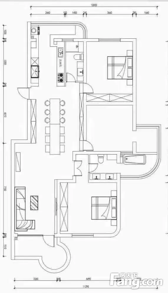
一、房源简介: 1、房型:本房厅与2房朝南、1房北;朝南带大阳台、次卧带阳台,朝北带工作阳台;厨卫全明;60平米客厅! 2、装修:本房为简单居家装修,买进若是需要重新装饰。 3、现况:业主定居国外,诚意出售,看房方便! 4、卖点: 小区位于吴兴路/淮海中路,环境优雅,多层,电梯小高层,周边的资源丰富 本房位于小区中心位置,也是本小区在售大三房比较实惠的! 二、租客刚刚搬走,目前空关,看房方便!看中价格可以谈!
-
业主心态问经纪人
业主很信任我,我能了解业主卖房新的动态。政策已经基本稳定,目前市场上房源多,价格也好谈,可以多看多对比,有性价比高的好房可以考虑入手。
-
小区配套问经纪人
小区居民素质高,配套设施齐全,地理位置好,交通便利。
-
服务介绍问经纪人
我是不动产客户经理徐毛毛,江西上饶人,从事房产行业多年,主营内环内二手房买卖、租赁及全市一手新房。 了解房产政策,贷款及其它一些疑难复杂问题及解决办法。 一次认识,服务终身! 1.所有流程
-
税费分析房贷计算
产权干净,税费清晰,欢迎来电咨询该房屋详情,静候您的来电!
-
户型解读问经纪人
房屋户型方正,景观布局合理,设计实用,空间舒适,格局优越,采光通风良好
周边配套
交通综合评分
查看全部超过上海3.3%的小区
-
地铁公交
10.0
-
城际交通
5.0
本月均价 129152元/m²
环比上月 持平
同比去年 下跌 7.74%
猜你喜欢
同小区其它房源
户型齐全,主打户型方正,明卫,明厨,客厅朝南,全明格局,双卧朝南三居
中汇花园户型主要有110平-188平的户型方正,明卫,明厨,客厅朝南,全明格局,双卧朝南的三居 、118平-134平的户型方正,明厨,明卫,客厅朝南的二居 。
*获取完整户型报告,同时会有免费语音讲解服务
买房加房产交流群,省钱不踩雷
3000+人正在热聊
- 免费咨询
- 专业服务
- 区域解读
- 户型分析


