万小随时用 270 高区双南两房 全明户型 看房有钥匙
-
296万
总价
-
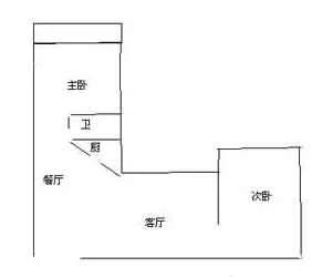
2室1卫
户型
-
44.35㎡
建筑面积
买房加房产交流群,省钱不踩雷
3000+人正在热聊
-
单价
66742元/平米
- 挂牌价格解析
-
楼层
高层/6层
- 咨询楼层
-
套内
暂无数据
- 咨询套内使用面积
-
楼型
板楼
-
朝向
南北
-
装修
精装修
-
年代
1996
-
发布
2026-01-27
-
地铁
距2号线江苏路站约676米
-
咨询总首付
首付约76.2万
首付税费及佣金情况 -
深度测评
小区南长苑(静安-曹家渡)
-
更多
楼户比、楼层高度、交易历史、抵押信息
-
核验码
202610569858
房源描述(1)
-
核心卖点问经纪人
【房屋介绍】正规二居室,南北通透,采光好,视野开阔。高层位置,无遮挡,享受充足阳光。室内精装修,拎包即住,节省您的时间与精力。 【楼层情况】电梯房,楼层好,出行便捷。 【朝向与光照】朝向良好,南北通透,空气流通,居住舒适。 【产权信息】满五 ,产权年限70年,商品房产权, 。 【特色亮点】实拍视频和全景,真实感受家的温馨。 【周边配套】小区内部环境优雅,绿化丰富,生活便利。 【价格与交易】价格 ,性价比高,适合长期居住。
-
业主心态问经纪人
房主因置换房产、资金周转需求及工作调动计划,诚意出售此房。手续齐全,随时可配合看房,有议价空间。业主急售,欢迎随时预约看房,期待找到有缘人。
-
小区配套问经纪人
位置:小区地理位置佳,绿化率高,居民素质高 配套:有健身器材,小型篮球场,可供小区居民使用 车位:停车位充足,建有地上停车场和地下车库 保安:小区内24保安巡逻
-
服务介绍问经纪人
本人从事房地产多年,公司有大量好房源,欢迎进入我的店铺查看,欢迎随时电话咨询,相信我的专业,为您置业安家保驾护航。
周边配套
交通综合评分
查看全部超过上海6.7%的小区
-
地铁公交
10.0
-
驾车出行
9.0
-
城际交通
9.5
本月均价 77082元/m²
环比上月 持平
同比去年 上涨 2.29%
猜你喜欢
同小区其它房源
户型齐全,主打二居
长华公寓户型主要有101平-146平的的二居 、150平-176平的户型方正,明卫,独立衣帽间,明厨的三居 、37平-37平的户型方正,明卫,明厨的一居 。
*获取完整户型报告,同时会有免费语音讲解服务
-
80564元/㎡
本月挂牌均价
-
持平
环比上月
买房加房产交流群,省钱不踩雷
3000+人正在热聊
- 免费咨询
- 专业服务
- 区域解读
- 户型分析


