鲁班路地 T 0 距L、南北通透婚房装修、可拎包入住
-
319万
总价
-
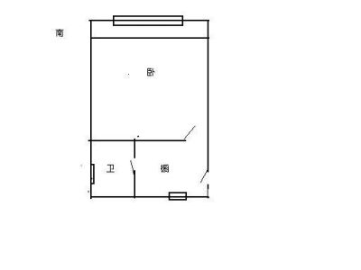
1室1厅1卫
户型
-
39.75㎡
建筑面积
买房加房产交流群,省钱不踩雷
3000+人正在热聊
加入群聊
-
单价
80252元/平米
- 挂牌价格解析
-
楼层
顶层/6层
- 咨询楼层
-
套内
暂无数据
- 咨询套内使用面积
-
楼型
板楼
-
朝向
南
-
装修
精装修
-
年代
1983
-
发布
2025-12-10
-
地铁
距4号线鲁班路站约163米
-
咨询总首付
首付约80万
首付税费及佣金情况 -
深度测评
小区瞿溪路1145弄小区(黄浦-打浦桥)
-
更多
楼户比、楼层高度、交易历史、抵押信息
-
核验码
202510507889
房源描述(1)
周边配套
地址:瞿溪路1145弄
交通综合评分
查看全部5.5
“一般”
超过上海42.1%的小区
-
地铁公交
10.0
-
城际交通
5.0
本月均价 76881元/m²
环比上月 持平
同比去年 下跌 11.76%
猜你喜欢
同小区其它房源
户型齐全,主打户型方正,明卫,明厨,客厅朝南,全明格局,主卧朝南一居
瞿溪路1145弄小区户型主要有28平-40平的户型方正,明卫,明厨,客厅朝南,全明格局,主卧朝南的一居 、51平-51平的明卫,明厨的二居 、68平-68平的户型方正,明厨,主卧朝南的三居 。
*获取完整户型报告,同时会有免费语音讲解服务
买房加房产交流群,省钱不踩雷
3000+人正在热聊
加入群聊
- 免费咨询
- 专业服务
- 区域解读
- 户型分析
免责声明:房源信息由网站用户提供,其真实性、合法性由信息提供者负责,最终以政府部门登记备案为准。本网站不声明或保证内容之正确性和可靠性,购买该房屋时,请谨慎核查。入学情况仅凭历史经验总结,在此不承诺升学事宜。请您在签订合同之前,切勿支付任何形式的费用,以免上当受骗。


